Vuokrataan toimistotilat - Helsinki
Osmontie 38, Käpylä, 00610 Helsinki #10854666
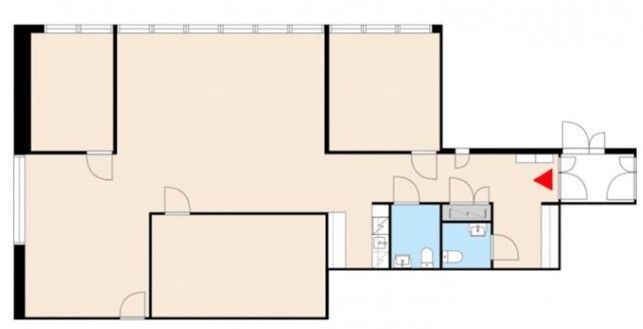
Hyväkuntoinen kombitoimisto, toimistotilaa ei ole vielä jaettu, vuokralainen pääsee vaikuttamaan remonttiin. Tilan koko n. 156m2 + 15m2 jyvitettyä sos.tilat.
Osoite
Osmontie 38, 00610 Helsinki
Tilatyyppi
Toimistotilaa
171 m2
Muuta
Osmontie 38:ssa on vuokrattavissa muuttovalmiita 171-708m2 toimistotiloja. Tilat ovat avaria ja valoisia, tarjoten optimaalisen työympäristön työntekijöille. Suuret ikkunat päästävät runsaasti luonnonvaloa sisään.
Kiinteistö sijaitsee keskeisellä paikalla Helsingin Käpylässä, erinomaisten kulkuyhteyksien varrella ja on saavutettavissa hyvin myös junalla, bussilla ja raitiovaunulla. Käpylän juna-aseman asemalaiturille on suora kävelytieyhteys. N. 300 metrin päässä on mm. yhdeksi parhaista ruokakaupoista valittu K Supermarket Mustapekka, monet lounasravintolat ja mm. kuntosali.
Rakennuksen kellarikerroksessa on laadukkaat pukuhuoneet ja suihkutilat työmatkaliikkujille.
Osmontie 38:lla on LEED Gold -ympäristösertifikaatti.
Kiinteistö sijaitsee keskeisellä paikalla Helsingin Käpylässä, erinomaisten kulkuyhteyksien varrella ja on saavutettavissa hyvin myös junalla, bussilla ja raitiovaunulla. Käpylän juna-aseman asemalaiturille on suora kävelytieyhteys. N. 300 metrin päässä on mm. yhdeksi parhaista ruokakaupoista valittu K Supermarket Mustapekka, monet lounasravintolat ja mm. kuntosali.
Rakennuksen kellarikerroksessa on laadukkaat pukuhuoneet ja suihkutilat työmatkaliikkujille.
Osmontie 38:lla on LEED Gold -ympäristösertifikaatti.
Vapautuu
Kysy
Rakennusvuosi
2015
Kerros
2
Ota yhteyttä
Infonia Oy
Itsehallintokuja 4, 02600 Espoo
Näytä puhelinnumero
+358404551390
Leena Juhola
Pyydä lisätietoa
