Vuokrataan toimistotilat - Helsinki
Väinämöisen linna, Aleksanterinkatu 44, Helsinki Keskusta - Etu-Töölö, 00100 Helsinki #10854632
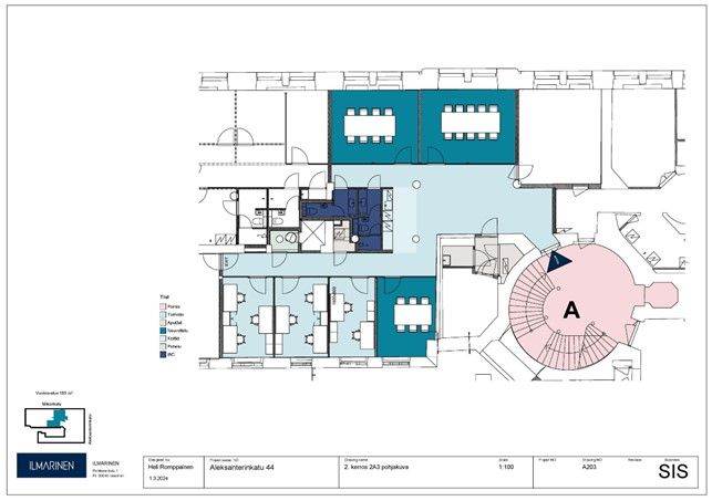
Muuttovalmis kaunis 2. kerroksen toimisto ihastuttavassa Väinämöisenlinnassa Helsingin keskustassa.
Osoite
Aleksanterinkatu 44, 00100 Helsinki
Tilatyyppi
Toimistotilaa
193 m2
Muuta
Osoiteessa Aleksanterinkatu 44 sijaitseva Väinämöisenlinna on monella tavalla ainutlaatuinen toimintaympäristö yritykselle. Järkälemäisen ulkoasunsa lisäksi rakennus vakuuttaa poikkeuksellisen upealla porraskäytävällään. Talon tyylin mukaisesti uusitut laadukkaat ja edustavat toimistotilat sijaitsevat 2.–7. kerroksessa. Toisen kerroksen Kansallissali on tunnettu juhla- ja kokouspaikka, ja se on säilytetty lähes alkuperäisessä asussaan.
Väinämöisenlinna valmistui vuonna 1901. Aleksanterinkadun ja Mikonkadun kulmaa hallitsevan jyhkeän kivilinnan eli Pohjolan talon rakennutti Palovakuutus-Osakeyhtiö Pohjola. Kansallisromantiikan pioneerityön julkisivun ja sisätilat suunnittelivat Herman Gesellius, Armas Lindgren ja Eliel Saarinen. Julkisivun kalevalaisen veistoskoristelun toteutti taiteilija Hilda Flodin.
Kiinteistö sijaitsee kävelymatkan päässä Esplanadilta ja keskustan monipuolisista kahvila- ja ravintola-alan, sekä kaupallisten palvelujen keskittymästä, parin minuutin päässä rautatieasemalta sekä metrolta. Kiinteistön edestä kulkee raitiovaunulinjat 3B, 3T, 4, 4T, 7A ja 7B. Pysäköintipaikkoja on tarjolla mm. Kluuvin, Stockmannin ja Kampin parkkihallissa.
Väinämöisenlinna valmistui vuonna 1901. Aleksanterinkadun ja Mikonkadun kulmaa hallitsevan jyhkeän kivilinnan eli Pohjolan talon rakennutti Palovakuutus-Osakeyhtiö Pohjola. Kansallisromantiikan pioneerityön julkisivun ja sisätilat suunnittelivat Herman Gesellius, Armas Lindgren ja Eliel Saarinen. Julkisivun kalevalaisen veistoskoristelun toteutti taiteilija Hilda Flodin.
Kiinteistö sijaitsee kävelymatkan päässä Esplanadilta ja keskustan monipuolisista kahvila- ja ravintola-alan, sekä kaupallisten palvelujen keskittymästä, parin minuutin päässä rautatieasemalta sekä metrolta. Kiinteistön edestä kulkee raitiovaunulinjat 3B, 3T, 4, 4T, 7A ja 7B. Pysäköintipaikkoja on tarjolla mm. Kluuvin, Stockmannin ja Kampin parkkihallissa.
Vapautuu
Kysy
Rakennusvuosi
1901
Kerros
2
Ota yhteyttä
Infonia Oy
Itsehallintokuja 4, 02600 Espoo
Näytä puhelinnumero
+358404551390
Leena Juhola
Pyydä lisätietoa
