Vuokrataan toimistotilat - Helsinki
Larun Kehräämö, Kiviaidankatu 2, Lauttasaari, 00210 Helsinki #10854550
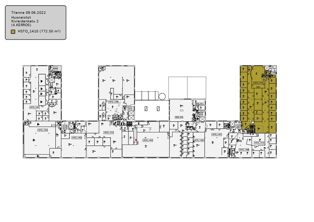
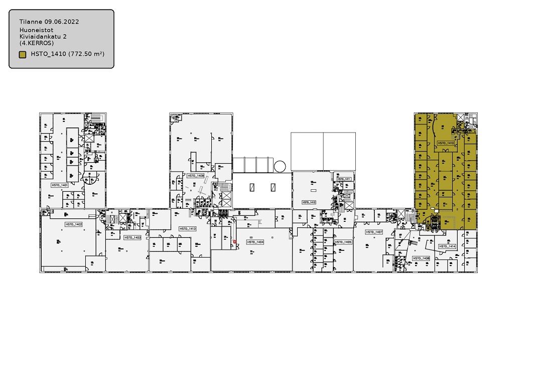
Pääosin toimistohuoneita, mahdollista jakaa n. 379-393 m2 kokoisiin tiloihin.
Osoite
Kiviaidankatu 2, 00210 Helsinki
Tilatyyppi
Toimistotilaa
772,5 m2
Muuta
Larun Kehräämö on aikoinaan Helsingin Villakehräämönä tunnettu kiinteistö, Kiviaidankatu 2, on yksi Lauttasaaren vanhimmista teollisuuskiinteistöistä. Rakennuksen näkyvin osa lienee 62 metriä korkea savupiippu.
Astu sisään Lauttasaaren raffeimpaan toimistotaloon! Lauttasaaren tyylikkäässä tunnelmassa, Vattuniemen poukamassa, siintää monien mahdollisuuksien Larun Kehräämö. Tänä päivänä se tarjoaa monenlaisia, modernejakin toimistotiloja, jotka ovat muokattavissa ja remontoitavissa tulevien käyttäjien yksilöllisiä tarpeita vastaaviksi. Kiinteistöstä löytyy myös varastotiloja ja tavarahissi. Toimisto- ja varastotiloja löytyy monenlaisten yritysten tarpeisiin.
Täällä vanhassa teollisuusmiljöössä on tehty töitä hyvässä tekemisen hengessä jo vuodesta 1953. Paljon on sittemmin ehtinyt muuttua, kuten muun muassa käyttämämme vihreä energia, joka tuotetaan sertifioidulla vesivoimalla, mutta parhaista paloista on pidetty lujasti kiinni: rouheat tiiliseinät huokuvat yhä rakennuksen vaiheikasta historiaa. Lue lisää https://larunkehraamo.fi/tarinat/
Kiinteistön läheisyydestä kulkevat myös bussit metroasemalle ja kaupunkipyöräasemalla on matkaa n. 300m. Alueella on useita lounasravintoloita, joista lähimmät sijaitsevat vain muutaman minuutin kävelymatkan päässä ja samassa rakennuksessa palvelee päivittäistavarakauppa.
Kiviaidankadulle on helppo tulla sekä autolla että julkisilla kulkuneuvoilla. Länsimetron lähimmälle asemalle on matkaa alle kilometri. Kiinteistön läheisyydestä kulkevat myös bussit metroasemalle ja kaupunkipyöräasemalle on matkaa n. 300m.
Astu sisään Lauttasaaren raffeimpaan toimistotaloon! Lauttasaaren tyylikkäässä tunnelmassa, Vattuniemen poukamassa, siintää monien mahdollisuuksien Larun Kehräämö. Tänä päivänä se tarjoaa monenlaisia, modernejakin toimistotiloja, jotka ovat muokattavissa ja remontoitavissa tulevien käyttäjien yksilöllisiä tarpeita vastaaviksi. Kiinteistöstä löytyy myös varastotiloja ja tavarahissi. Toimisto- ja varastotiloja löytyy monenlaisten yritysten tarpeisiin.
Täällä vanhassa teollisuusmiljöössä on tehty töitä hyvässä tekemisen hengessä jo vuodesta 1953. Paljon on sittemmin ehtinyt muuttua, kuten muun muassa käyttämämme vihreä energia, joka tuotetaan sertifioidulla vesivoimalla, mutta parhaista paloista on pidetty lujasti kiinni: rouheat tiiliseinät huokuvat yhä rakennuksen vaiheikasta historiaa. Lue lisää https://larunkehraamo.fi/tarinat/
Kiinteistön läheisyydestä kulkevat myös bussit metroasemalle ja kaupunkipyöräasemalla on matkaa n. 300m. Alueella on useita lounasravintoloita, joista lähimmät sijaitsevat vain muutaman minuutin kävelymatkan päässä ja samassa rakennuksessa palvelee päivittäistavarakauppa.
Kiviaidankadulle on helppo tulla sekä autolla että julkisilla kulkuneuvoilla. Länsimetron lähimmälle asemalle on matkaa alle kilometri. Kiinteistön läheisyydestä kulkevat myös bussit metroasemalle ja kaupunkipyöräasemalle on matkaa n. 300m.
Vapautuu
Kysy
Rakennusvuosi
1952
Kerros
4
Ota yhteyttä
Infonia Oy
Itsehallintokuja 4, 02600 Espoo
Näytä puhelinnumero
+358404551390
Leena Juhola
Pyydä lisätietoa
