Vuokrataan toimistotilat - Helsinki
Domus Gaudium, Mechelininkatu 3 C, Helsinki Keskusta - Etu-Töölö, 00100 Helsinki #10854507
Vuonna 2008 valmistuneesta Domus Gaudiumista vuokrattavissa koulutustilaa. Kohteeseen on erinomaiset julkisen liikenteen yhteydet ja talon parkkihallista on vuokrattavissa runsaasti autopaikkoja.
Osoite
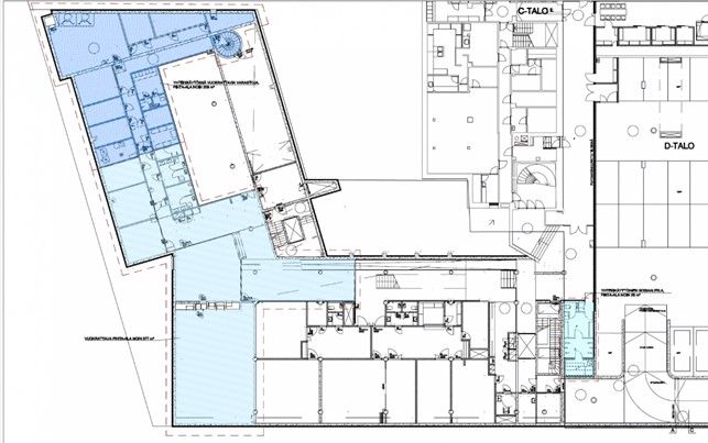
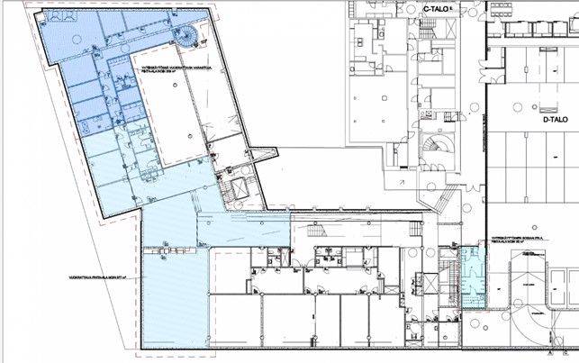
Mechelininkatu 3 C, 00100 Helsinki
Tilatyyppi
Toimistotilaa
377 m2
Muuta
Vuonna 2008 valmistunut Domus Gaudium sijaitsee Kampissa. Myös kolmantena ylioppilastalona tunnettu Domus Gaudium toimii muunmuassa opiskelijajärjestöjen kerjo- ja toimitiloina, mutta sen toiminta ei rajoitu opiskelijatapahtumiin. Domus Gaudiumilla sijaitsee esimerkiksi kattosauna Sivistys; lisäksi tiloissa on luentosaleja sekä osakunta- ja toimistotiloja.
Mechelininkadun ja Leppäsuonkadun kulmaan rakennettu uusi ylioppilastalo vihittiin käyttöön HYYn vuosijuhlapäivänä 26. marraskuuta. Arkkitehtitoimisto Brunow ja Maunulan suunnittelemassa Domus Gaudiumissa on myös maanalainen yhteys viereiseen Domus Academicaan, opiskelijamajoitusta ja hostellitoimintaa tarjoavaan kolmen rakennuksen kiinteistöön.
Domus Gaudium toteutettiin yhteishankkeena Helsingin kauppakorkeakoulun tukisäätiön kanssa. Sen latinankielinen tunnuslause sub hoc tecto cives academici excoluntur tarkoittaa “tämän rakennuksen suojissa tehdään akateemisia kansalaisia”.
Mechelininkadun ja Leppäsuonkadun kulmaan rakennettu uusi ylioppilastalo vihittiin käyttöön HYYn vuosijuhlapäivänä 26. marraskuuta. Arkkitehtitoimisto Brunow ja Maunulan suunnittelemassa Domus Gaudiumissa on myös maanalainen yhteys viereiseen Domus Academicaan, opiskelijamajoitusta ja hostellitoimintaa tarjoavaan kolmen rakennuksen kiinteistöön.
Domus Gaudium toteutettiin yhteishankkeena Helsingin kauppakorkeakoulun tukisäätiön kanssa. Sen latinankielinen tunnuslause sub hoc tecto cives academici excoluntur tarkoittaa “tämän rakennuksen suojissa tehdään akateemisia kansalaisia”.
Vapautuu
Kysy
Rakennusvuosi
2008
Kerros
-1
Ota yhteyttä
Infonia Oy
Itsehallintokuja 4, 02600 Espoo
Näytä puhelinnumero
+358404551390
Leena Juhola
Pyydä lisätietoa
