Vuokrataan toimistotilat - Helsinki
Kuparitalo, Töölönkatu 4, Helsinki Keskusta - Etu-Töölö, 00100 Helsinki #10854459
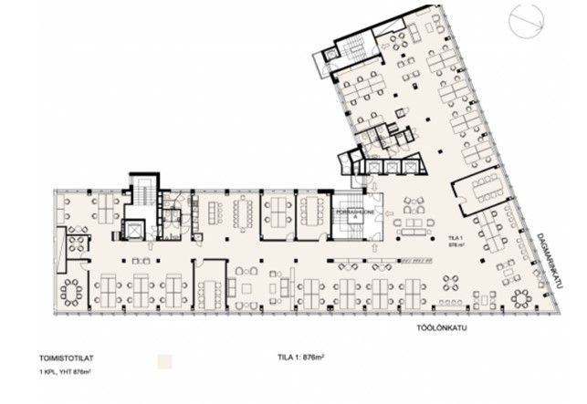
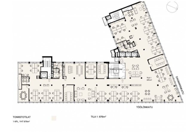
6. kerroksen toimistohuoneisto Kuparitalossa
Osoite
Töölönkatu 4, 00100 Helsinki
Tilatyyppi
Toimistotilaa
876 m2
Muuta
Kuparitalo on aikakautensa hieno esimerkki 50-luvun liikerakennuksesta. Rakennus sijaitsee Helsingin keskustan 00100 postinumeroalueella, Eduskuntatalon ja kulttuurilaitosten, kuten kansallismuseon, Finlandia-talon ja Kiasman, läheisyydessä. Outokummun pääkonttoriksi alunperin rakennetun kohteen arkkitehtina toimi Märta Blomstedt, joka tunnetaan yhtenä Suomen huomattavampien funktionalististen rakennusten, kuten Hotelli Aulanko ja hotelli-ravintola Pohjanhovi, arkkitehtina.
Etu-Töölössä sijaitseva Kuparitalo on myös lyhyen kävelymatkan päässä mm. rautatieasemalta ja Kampin keskuksesta ja tarjoaa elegantisti uudistettuja toimistotiloja tapahtumien keskipisteessä, eduskunnan naapurissa. Vuonna 1957 valmistuneessa rakennuksessa pääkonttoritason arvokkuus kohtaa modernin raikkauden. Kaunis ja ajaton kupari elää sen historiassa, julkisivussa ja sisätilojen detaljeissa. Erikokoisia tiloja on kahdeksassa kerroksessa, ja ne ovat muunneltavissa vuokralaisen toiveiden mukaan. Voit valita sisustuksen toimistotilaasi kolmesta taiten suunnitellusta teemasta: Philip (klassinen New York), Märta (raikas ja linjakas funkkis) ja Arne (skandinaavinen 50-luku).
Kiinteistön palveluihin kuuluvat mm. lounasravintola, erikseen vuokrattavat kokous- ja edustustilat, sekä neuvotteluhuoneet, kuntosali, sauna, pyöräparkki ja aulapalvelu. Omia autohallipaikkoja on 5, joiden lisäksi vuokrattavissa on myös 14 pihapysäköintipaikkaa. Pysäköintipaikkoja on lisäksi vuokrattavissa mm. naapurikiinteistöltä ja Finlandiatalon parkkihallista.
Etu-Töölössä sijaitseva Kuparitalo on myös lyhyen kävelymatkan päässä mm. rautatieasemalta ja Kampin keskuksesta ja tarjoaa elegantisti uudistettuja toimistotiloja tapahtumien keskipisteessä, eduskunnan naapurissa. Vuonna 1957 valmistuneessa rakennuksessa pääkonttoritason arvokkuus kohtaa modernin raikkauden. Kaunis ja ajaton kupari elää sen historiassa, julkisivussa ja sisätilojen detaljeissa. Erikokoisia tiloja on kahdeksassa kerroksessa, ja ne ovat muunneltavissa vuokralaisen toiveiden mukaan. Voit valita sisustuksen toimistotilaasi kolmesta taiten suunnitellusta teemasta: Philip (klassinen New York), Märta (raikas ja linjakas funkkis) ja Arne (skandinaavinen 50-luku).
Kiinteistön palveluihin kuuluvat mm. lounasravintola, erikseen vuokrattavat kokous- ja edustustilat, sekä neuvotteluhuoneet, kuntosali, sauna, pyöräparkki ja aulapalvelu. Omia autohallipaikkoja on 5, joiden lisäksi vuokrattavissa on myös 14 pihapysäköintipaikkaa. Pysäköintipaikkoja on lisäksi vuokrattavissa mm. naapurikiinteistöltä ja Finlandiatalon parkkihallista.
Vapautuu
Kysy
Rakennusvuosi
1957
Kerros
6
Ota yhteyttä
Infonia Oy
Itsehallintokuja 4, 02600 Espoo
Näytä puhelinnumero
+358404551390
Leena Juhola
Pyydä lisätietoa
