Vuokrataan toimistotilat - Helsinki
Kasarmikatu 44, Kaartinkaupunki, 00130 Helsinki #10854446
Remontoitu ja siisti toimistotila Esplanadin puiston läheisyydessä sijaitsevassa arvokiinteistössä.
Osoite
Kasarmikatu 44, 00130 Helsinki
Tilatyyppi
Toimistotilaa
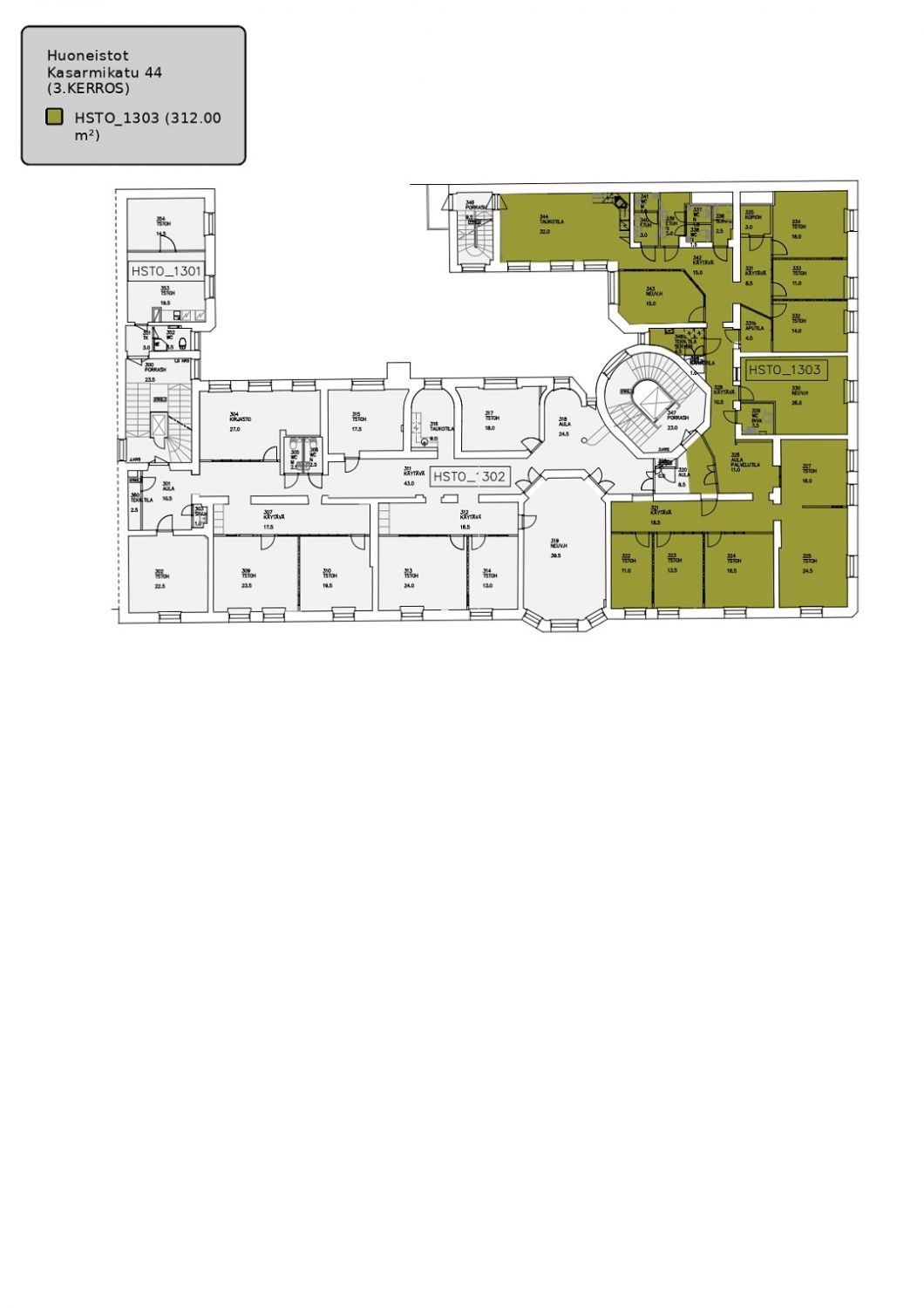
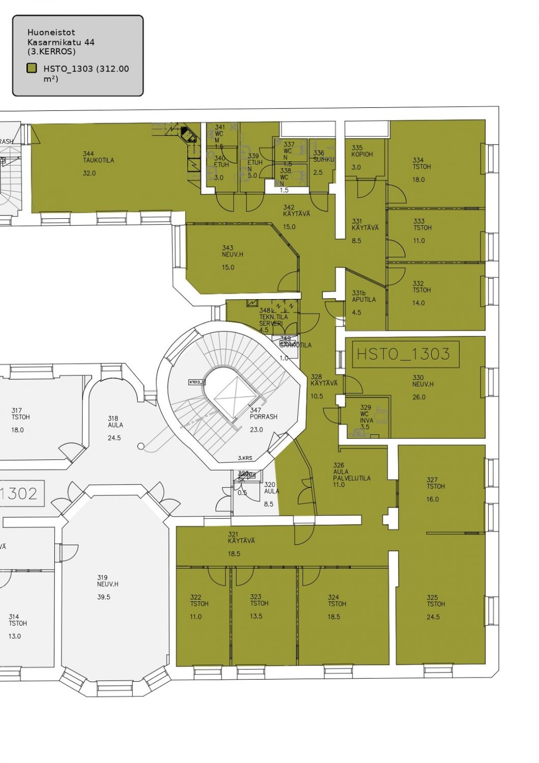
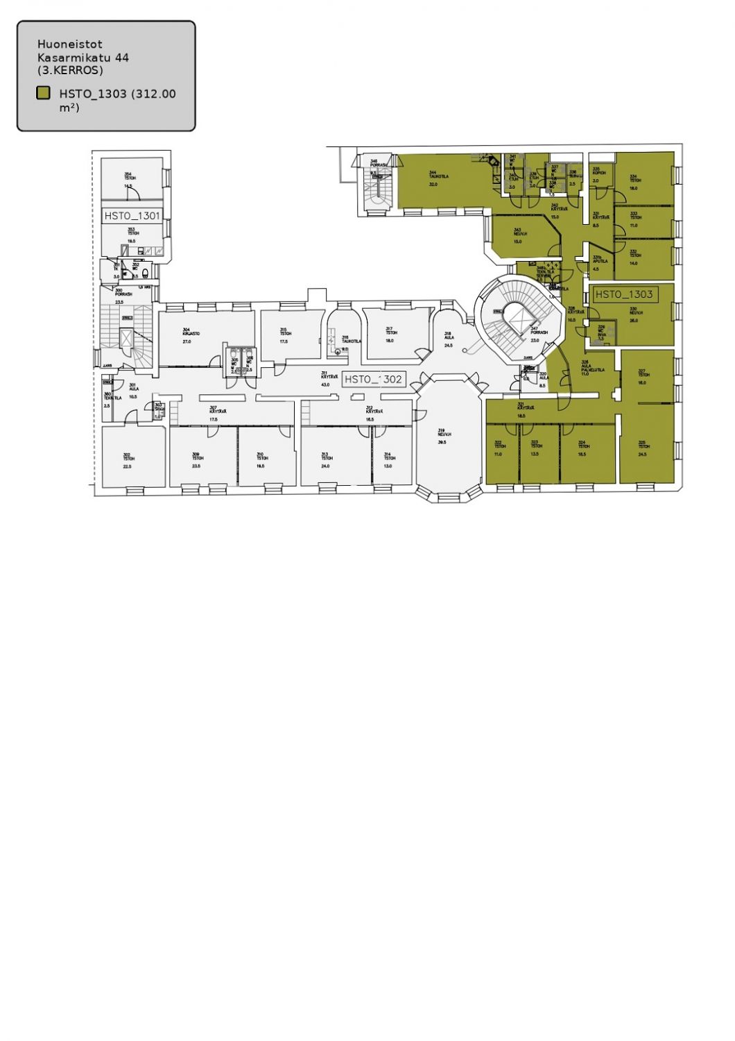
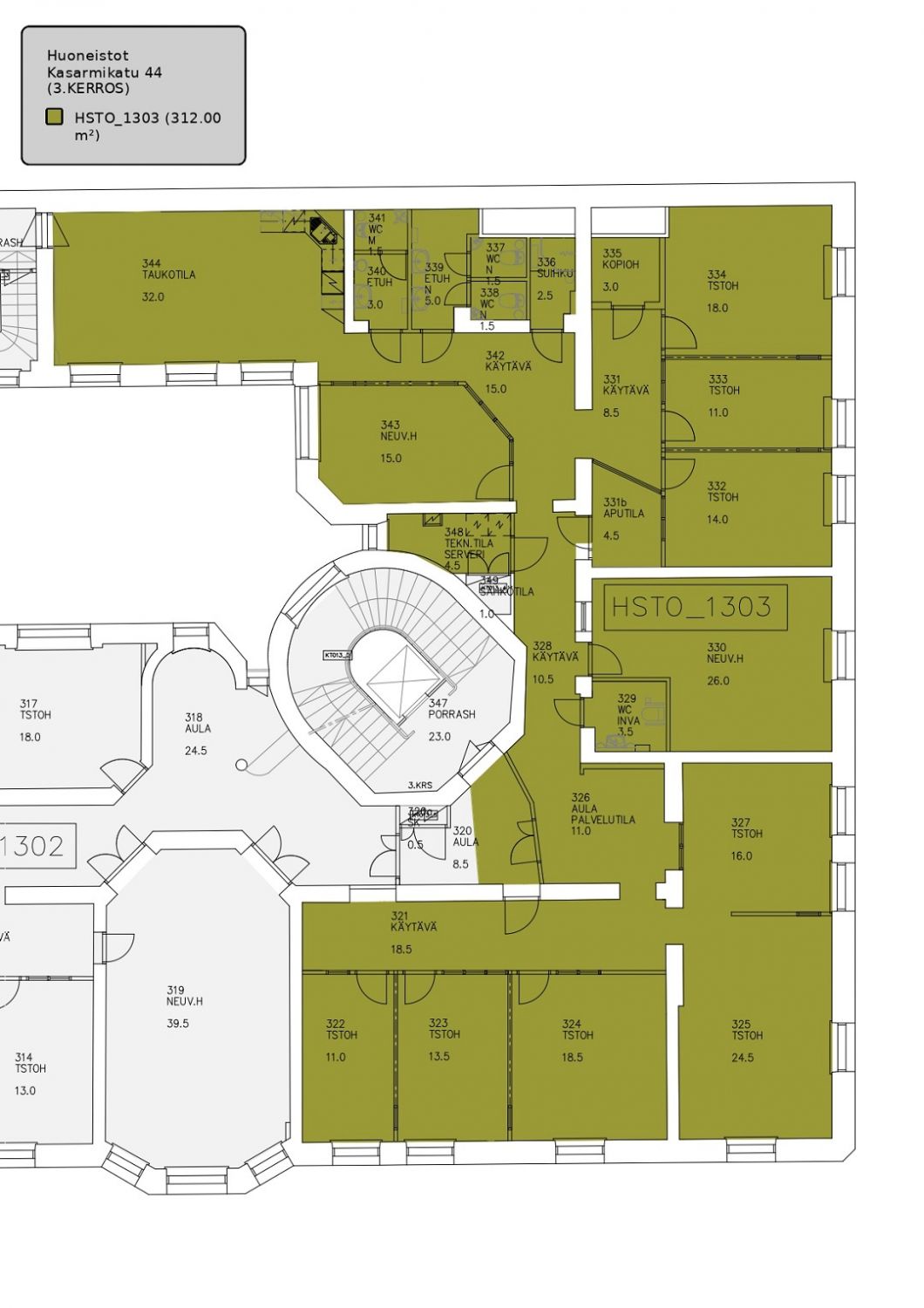
312 m2
Muuta
Helsingin Kasarmikatu 44 on upea toimistokohde vetovoimaisella sijainnilla Kaartinkaupungin alueella. Kohteessa on pääasiassa toimistotilaa sekä muutama kivijalassa sijaitseva liiketila. Alakerrassa sijaitsee viihtyisä ravintola. Kaikki keskustan palvelut ja lukuisat lounasravintolat sijaitsevat vain kivenheiton päässä kohteesta. Lähistöllä sijaitsee myös Kasarmitorin pysäköintihalli.
Osoitteeseen Kasarmikatu 44 valmistui vuonna 1899 Arkkitehtuuritoimisto Grahn, Hedman & Wasastjernan suunnittelema ja Ab W.H.W:n rakennuttama (Hammaslääkäri Ernest Waseniuksen, maisteri Wenzel Hagelstamin ja tilanomistaja Axel Wahrenin omistama Ab W.H.W.) nelikerroksinen asuintalo, jonka katutasossa oli liikehuoneistoja. Julkisivun katutaso ja ensimmäinen asuntokerros oli vuorattu hiekkakiviharkotuksella. Muut kerrokset oli rapattu.
Vuonna 1920 rakennus siirtyi Teollisuusvakuutuksen haltuun, joka vähitellen 1930-luvulta alkaen on muuttanut kaikki huoneistot konttoreiksi. Ullakkokerros rakennettiin vuonna 1929 (Asta Nyman). Entisen katutason ja ensimmäisen asuinkerroksen julkisivut vuorattiin punaisella Espoon graniitilla ja näiden kerrosten ikkunanjakoa muutettiin vuonna 1938 samaan aikaan kuin A. Ahlstömin liiketalo rakennettiin arkkitehtitoimisto Jung & Jungin suunnitelmien mukaan.
Kasarmikadun puoleisen porrashuoneen sisääntuloaula on julkisivumuutoksen yhteydessä täysin uusittu ja siihen on asennettu hissi. Porrashuoneessa on säilynyt alkuperäinen kaide ja lyijypuitteiset ikkunat.
Kiinteistö on nykyiseltä energialuokitukseltaan F sekä BREAAM In-Use Good -sertifioitu ja siinä käytetään vihreää kiinteistösähköä.
Osoitteeseen Kasarmikatu 44 valmistui vuonna 1899 Arkkitehtuuritoimisto Grahn, Hedman & Wasastjernan suunnittelema ja Ab W.H.W:n rakennuttama (Hammaslääkäri Ernest Waseniuksen, maisteri Wenzel Hagelstamin ja tilanomistaja Axel Wahrenin omistama Ab W.H.W.) nelikerroksinen asuintalo, jonka katutasossa oli liikehuoneistoja. Julkisivun katutaso ja ensimmäinen asuntokerros oli vuorattu hiekkakiviharkotuksella. Muut kerrokset oli rapattu.
Vuonna 1920 rakennus siirtyi Teollisuusvakuutuksen haltuun, joka vähitellen 1930-luvulta alkaen on muuttanut kaikki huoneistot konttoreiksi. Ullakkokerros rakennettiin vuonna 1929 (Asta Nyman). Entisen katutason ja ensimmäisen asuinkerroksen julkisivut vuorattiin punaisella Espoon graniitilla ja näiden kerrosten ikkunanjakoa muutettiin vuonna 1938 samaan aikaan kuin A. Ahlstömin liiketalo rakennettiin arkkitehtitoimisto Jung & Jungin suunnitelmien mukaan.
Kasarmikadun puoleisen porrashuoneen sisääntuloaula on julkisivumuutoksen yhteydessä täysin uusittu ja siihen on asennettu hissi. Porrashuoneessa on säilynyt alkuperäinen kaide ja lyijypuitteiset ikkunat.
Kiinteistö on nykyiseltä energialuokitukseltaan F sekä BREAAM In-Use Good -sertifioitu ja siinä käytetään vihreää kiinteistösähköä.
Vapautuu
Kysy
Rakennusvuosi
1899
Kerros
3
Ota yhteyttä
Infonia Oy
Itsehallintokuja 4, 02600 Espoo
Näytä puhelinnumero
+358404551390
Leena Juhola
Pyydä lisätietoa
