Vuokrataan varastotilat, muut tilat - Espoo
Koskelontie 21-25, Koskelo, 02920 Espoo #10854373
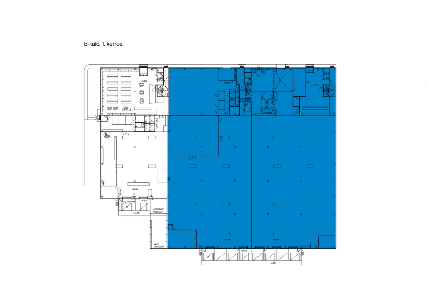
Siisti, korkea ja lämmin 1.391m2+222m2 työtilaa. Varastossa katettu lastauslaituri kolmella nosto-ovella, korkeus noin 9m, toiselta puolelta taloa on sisäänajomahdollisuus. Yläpuolisesta kerroksesta saatavilla myös hyväkuntoista toimistotilaa 190m2-428m2, asianmukaiset sosiaalitilat löytyy. SOITA ja SOVI ESITTELY: Puh: 09 77 45 100.
Osoite
Koskelontie 21-25, 02920 Espoo
Tilatyyppi
Varastotilaa
1391 m2
Muuta tilaa
222 m2
Yhteensä
1613 m2
Pohjapiirros
Kiinteistö
Koskelo Trade Park on logistiikkakiinteistö loistavalla sijainnilla Espoon Koskelossa. Kiinteistöstä mahdollista saada toimisto- ja varastotilat saman katon alta.
Sijainti
Loistava sijainti Espoon Koskelossa Kehä III:n välittömässä läheisyydessä, josta yhteydet kaikille pääväylille sekä mm. Helsinki-Vantaan lentoasemalle ja Vuosaaren satamaan.
Pysäköinti
Pihalla runsaasti pysäköintitilaa.
Kulkuyhteydet
Kehä III
Vapautuu
Heti
Katutasossa
Näkyvällä paikalla
Lastauslaituri
Ota yhteyttä
Senaatin Notariaatti Oy LKV
Lämmittäjänkatu 4 A
FIN-00880 Helsinki
Tel:
Näytä puhelinnumero
+358 9 7745 100
Pyydä lisätietoa
