Vuokrataan liiketilat - Helsinki
Simonkatu 6, Keskusta, 00100 Helsinki #10854321
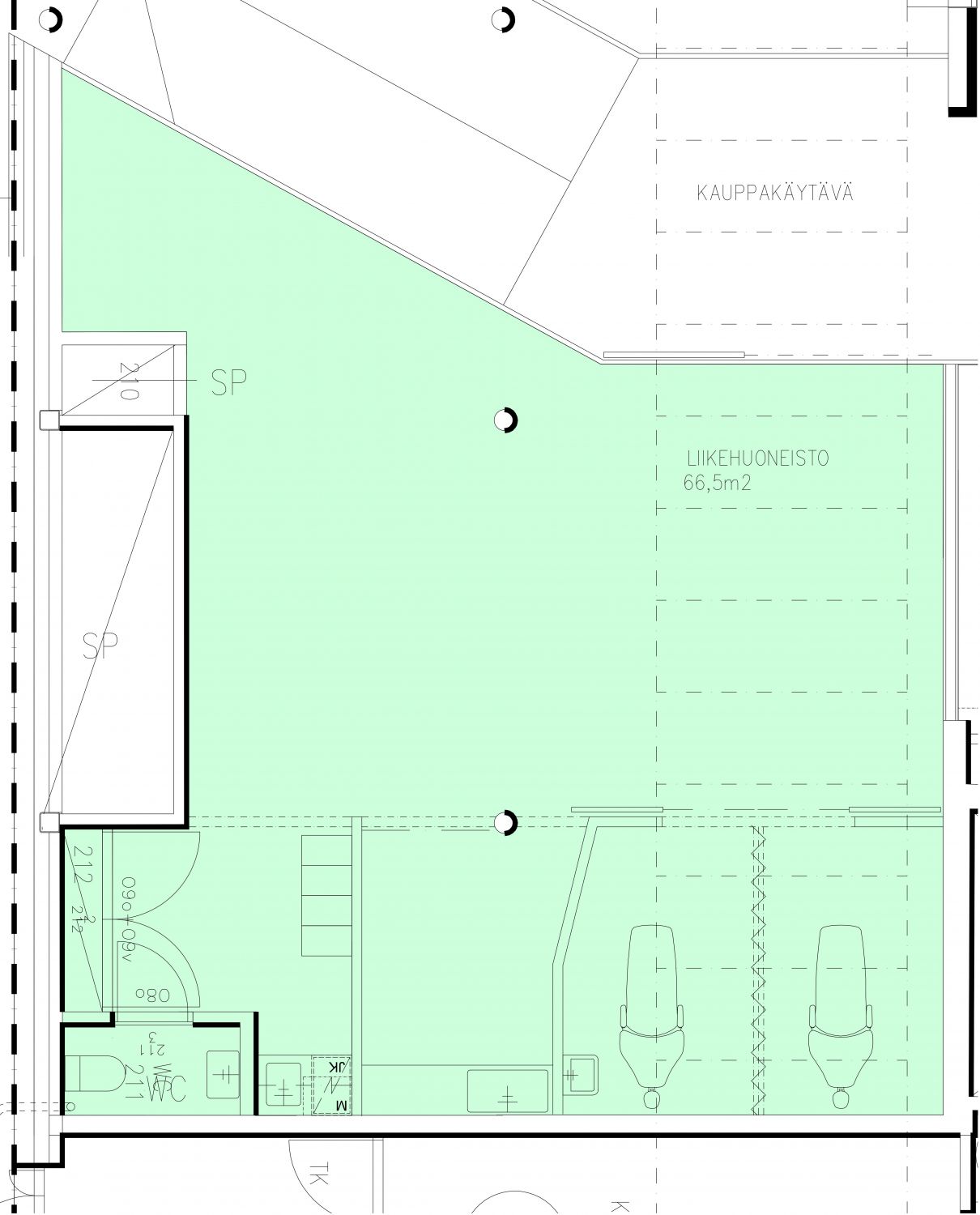
Liiketila Forum-korttelissa, Kukontorin kauppakäytävässä
Osoite
Simonkatu 6, 00100 Helsinki
Tilatyyppi
Liiketilaa
66,5 m2
Pohjapiirros
Tila soveltuu
Parturi- ja kampaamo
Vuokra
3325 € / kk + alv + kauppakeskuksen markkinointimaksu
Kiinteistö
Parturi-kampaamona toiminut liiketila joka soveltuu myös myymäläksi.
Sisäänkäynti kauppakeskuksen puolelta, Kukontorin kauppakäytävältä.
Tila ei sovellu ravintola- tai kahvilatoimintaan.
This premises is not suitable for restaurant or café operations.
Vähintään 3 v. vuokrasopimus.
Sisäänkäynti kauppakeskuksen puolelta, Kukontorin kauppakäytävältä.
Tila ei sovellu ravintola- tai kahvilatoimintaan.
This premises is not suitable for restaurant or café operations.
Vähintään 3 v. vuokrasopimus.
Vapautuu
Heti
Kerros
3
Energiatehokkuusluokka
Ei lain edellyttämää energiatodistusta
Hissi
Ota yhteyttä
ScanReal Oy LKV
Opus Business Park
Hitsaajankatu 24
00810 Helsinki
info@scanreal.fi
Puh:
Näytä puhelinnumero
020 730 8830
Sopivat toimitilat yhdellä otolla!
Kartoitamme toimitilatarpeesi ja etsimme yrityksellesi parhaiten sopivat vapaat toimitilat. Koska vuokranantajat maksavat palvelumme, on tämä yrityksellesi veloituksetonta.
OTA YHTEYTTÄ - SOVI NÄYTTÖ!
Kaikki kohteemme eivät ole netissä, kerro tilatarpeesi niin kartoitamme vaihtoehdot.
Palvelumme on tilanhakijalle ilmainen
Pyydä lisätietoa
