Vuokrataan toimistotilat - Helsinki
Simonkatu 6, Keskusta, 00100 Helsinki #10854319
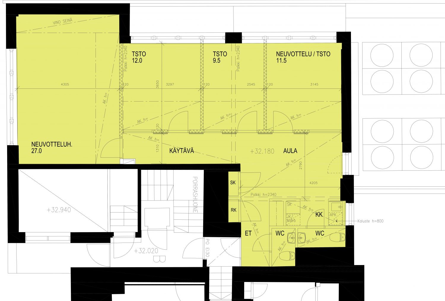
Seitsemännen kerroksen 93 m² toimistotila Forum-korttelissa.
Osoite
Simonkatu 6, 00100 Helsinki
Tilatyyppi
Toimistotilaa
93 m2
Pohjapiirros
Kiinteistö
Monipuolisessa toimistossa tällä hetkellä 3 toimistohuonetta, 1 iso neuvotteluhuone, pieni aula, wc-tilat ja pieni keittiö
Simonkatu 6, eli Maalaisten talo, sijaitsee Forum-korttelissa aivan Helsingin liikekeskuksessa. Seitsenkerroksinen liike- ja toimistotalo tarjoaa loistavat puitteet niin liiketoiminnalle, kuin toimistotiloja etsiville. Tunnettu tiilirakennus lähellä Kampin kauppakeskusta on maamerkki Helsingin keskustassa.
Ilmoituksen kuvat ovat yleiskuvia kiinteistön eri tiloista.
Simonkatu 6, eli Maalaisten talo, sijaitsee Forum-korttelissa aivan Helsingin liikekeskuksessa. Seitsenkerroksinen liike- ja toimistotalo tarjoaa loistavat puitteet niin liiketoiminnalle, kuin toimistotiloja etsiville. Tunnettu tiilirakennus lähellä Kampin kauppakeskusta on maamerkki Helsingin keskustassa.
Ilmoituksen kuvat ovat yleiskuvia kiinteistön eri tiloista.
Vapautuu
Heti
Kerros
7 / 7
Energiatehokkuusluokka
Ei lain edellyttämää energiatodistusta
Näkyvällä paikalla
Hissi
Ota yhteyttä
ScanReal Oy LKV
Opus Business Park
Hitsaajankatu 24
00810 Helsinki
info@scanreal.fi
Puh:
Näytä puhelinnumero
020 730 8830
Sopivat toimitilat yhdellä otolla!
Kartoitamme toimitilatarpeesi ja etsimme yrityksellesi parhaiten sopivat vapaat toimitilat. Koska vuokranantajat maksavat palvelumme, on tämä yrityksellesi veloituksetonta.
OTA YHTEYTTÄ - SOVI NÄYTTÖ!
Kaikki kohteemme eivät ole netissä, kerro tilatarpeesi niin kartoitamme vaihtoehdot.
Palvelumme on tilanhakijalle ilmainen
Pyydä lisätietoa
