Vuokrataan varastotilat - Helsinki
Ruosilantie 14, Konala, 00390 Helsinki #10854265
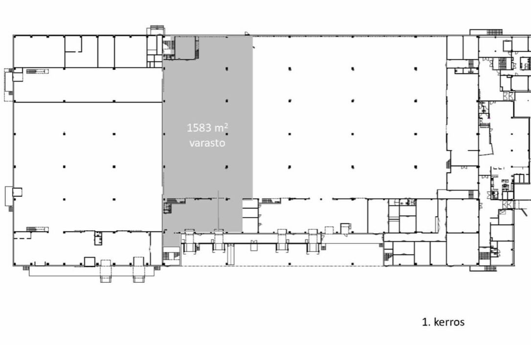
Vuokrataan varasto- / tuotantotilaa Konalasta. Käytännöllisessä toimitilassa on korkeaa varastoa 1583 m², siistiä ja kompaktia parvivarastoa 422 m² sekä toimistoa 218 m².
Korkea varasto (vapaa korkeus 6m) on selkeää tila, jossa on lastauslaituri ja nosto-ovi. Toimitila on toiminut ennen tapahtuma-alan toimijan varastona.
Kohteella on erittäin hyvä sijainti Vihdintien varrella ja Kehä I:n liittymän suorassa läheisyydessä. Kiinteistössä on lounasravintola ja hyvin parkkitilaa.
Kiinteistölle on jo asennettu aurinkopaneelit, jotka mahdollistavat uusiutuvan energian hyödyntämisen. Kiinteistön lämmitysmuotona toimii maalämpö, mikä tekee siitä entistä energiatehokkaamman. Näiden investointien myötä kiinteistö on jatkossa energian osalta täysin päästötön (0-päästöinen).
Lisätietoja soita 020 730 4530 tai info@repoint.fi. Palvelumme on tilanhakijalle ilmainen.
Repoint Toimitilat Oy
Itälahdenkatu 22 B, 00210 Helsinki
Näytä puhelinnumero
020 730 4530
Lisätietoja soita Näytä puhelinnumero 020 730 4530 tai info@repoint.fi
https://repoint.fi/