Vuokrataan toimistotilat - Helsinki
Malminkatu 16, Kamppi, 00100 Helsinki #10854249
Malminkadulla tarjolla keskeisellä paikalla valoisaa, hyvää ja asiallista toimistotilaa huippunäkymin Kampissa Kampin torin vierestä.
Osoite
Malminkatu 16, 00100 Helsinki
Tilatyyppi
Toimistotilaa
235 m2
Kiinteistö
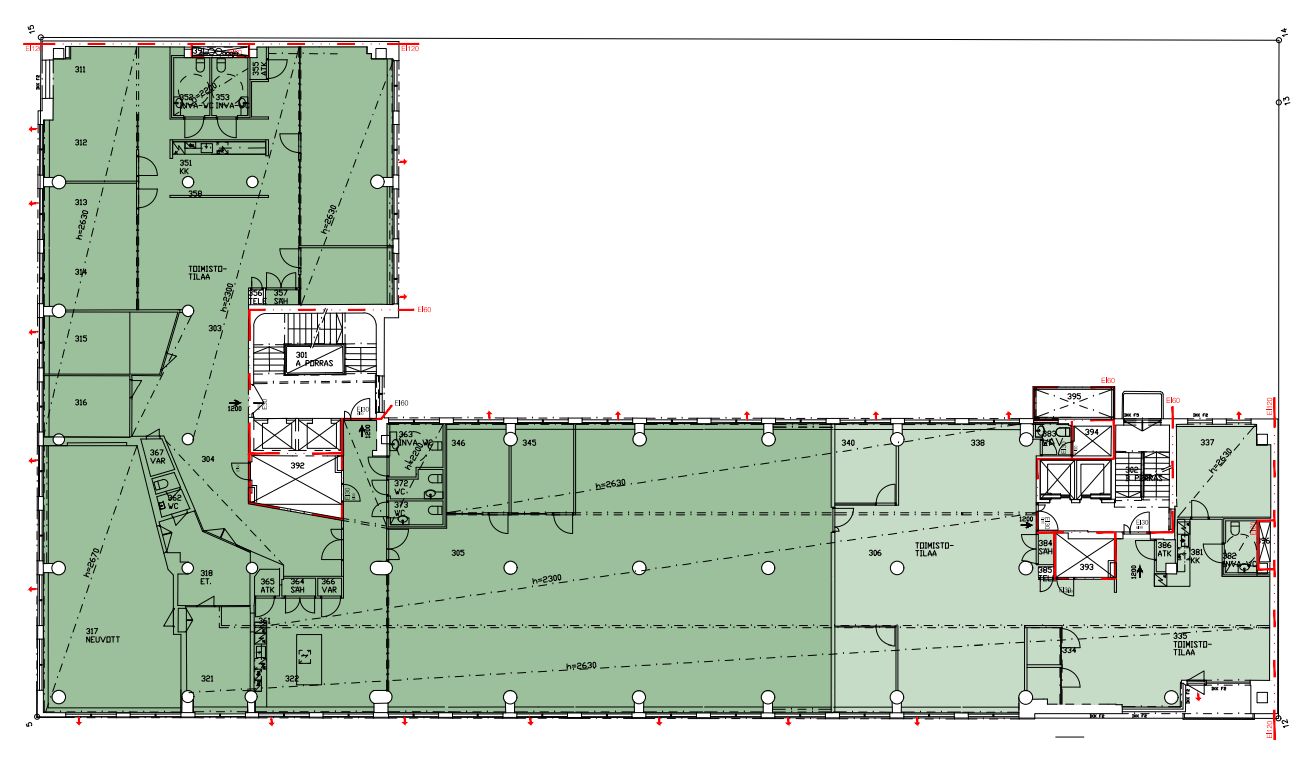
Malminkadulla tarjolla keskeisellä paikalla valoisaa, hyvää ja asiallista toimistotilaa huippunäkymin Kampissa Kampin torin vierestä. Tilassa on avotila, neuvotteluhuoneet, oma keittiö ja sosiaalitilat. Tila on joustavasti muokattavissa vuokralaisen tarpeen mukaan.
Sijainti
Kamppi, Helsinki
Pysäköinti
Kiinteistössä on oma parkkihalli.
Palvelut
Ydinkeskustan palvelut.
Kulkuyhteydet
-Metro
-Juna
-Raitiovaunu
-Bussi
-Oma auto
-Juna
-Raitiovaunu
-Bussi
-Oma auto
Vapautuu
Heti
Kerros
3
Energiatehokkuusluokka
Ei lain edellyttämää energiatodistusta
Näkyvällä paikalla
Hissi
Ota yhteyttä
REALIUM OY LKV
Tammasaarenkatu 1, 00180 Helsinki
Vaihde:
Näytä puhelinnumero
010 326 346
Tuomo Mäkelä
tuomo.makela@realium.fi
p.
Näytä puhelinnumero
044 050 1158
Joel Keto
joel.keto@realium.fi
p.
Näytä puhelinnumero
045 317 0330
KAIKKI TILAVAIHTOEHDOT KERRALLA!
SOITA - MEILAA JA TILAA NÄYTTÖ!
Ilmainen palvelu tilanhakijoille.
Kartoitamme parhaat tilavaihtoehdot.
Kaikki kohteet eivät ole netissä.
Pyydä lisätietoa
