Vuokrataan liiketilat - Oulu
Kirkkokatu 27 Liiketila B +C3, Keskusta, 90100 Oulu #10854181
Osoite
Kirkkokatu 27 Liiketila B +C3, 90100 Oulu
Tilatyyppi
Liiketilaa
44 - 55 m2
Vuokra
3500,00 €/kk
Muuta
Keskustan yksi näkyvimmistä liikepaikoista on remontoitu uuteen uskoon. Vapaana vielä pari näyttävää tilaa ensimmäisestä kerroksesta. Tiloissa suuret näyteikkuna Rotuaarin tai Saaristonkadun suuntaan. Kiinteistön näyttävät mainospaikat sisältyvät vuokraan.
Hammarinkulmaan tuo runsaasti asiakasliikennettä Pizza Hut sekä toisen kerroksen UFF Second Hand Store. Rotuaari on Oulun keskustan muodin, ravintolaelämän ja viihteen keskus eli kaupunkilaisten olohuone. Vastapäätä on Kauppakortteli Pekuri, joka on täynnä ravintoloita ja viihtyisiä liikkeitä, vieressä tavaratalo Halonen, Kekäle ja muut keskustan liikkeet.
Vapaat tilat:
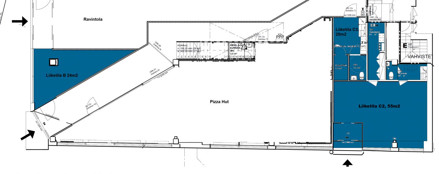
- Liiketila C2, 55m2, tyylikäs liiketila tai toimisto, johon käynti Saaristonkadulta. Isot ikkunat pitävät huolen siitä, että tämä tila huomataan!
- Liiketila B, 44m2, kiinteistön pääsisäänkäynnin vieressä liiketila, jossa kaksi isoa ikkunaa Rotuaarin suuntaan. Tila sopii mm. myymäläksi ja showroomiksi. Tilan välittömästä läheisyydestä vuokrattavissa henkilökunnan taukotila ja varasto.
Tilat remontoidaan vuokralaisen tarpeita vastaavaksi. Vuokrataso ilman valmiiksi rakennettuja pintoja 36-79€/m2 tilasta riippuen. Kysy lisätietoa hinnasta ja tiloista!
Kellarista vuokrattavissa autohallipaikkoja ja varastotilaa.
Ota yhteyttä ja suunnitellaan teille uudet tilat!
Eikö tämä tila ole sopiva? Kysy muita vaihtoehtojamme!
#liiketila #myymälä #toimisto
Hammarinkulmaan tuo runsaasti asiakasliikennettä Pizza Hut sekä toisen kerroksen UFF Second Hand Store. Rotuaari on Oulun keskustan muodin, ravintolaelämän ja viihteen keskus eli kaupunkilaisten olohuone. Vastapäätä on Kauppakortteli Pekuri, joka on täynnä ravintoloita ja viihtyisiä liikkeitä, vieressä tavaratalo Halonen, Kekäle ja muut keskustan liikkeet.
Vapaat tilat:
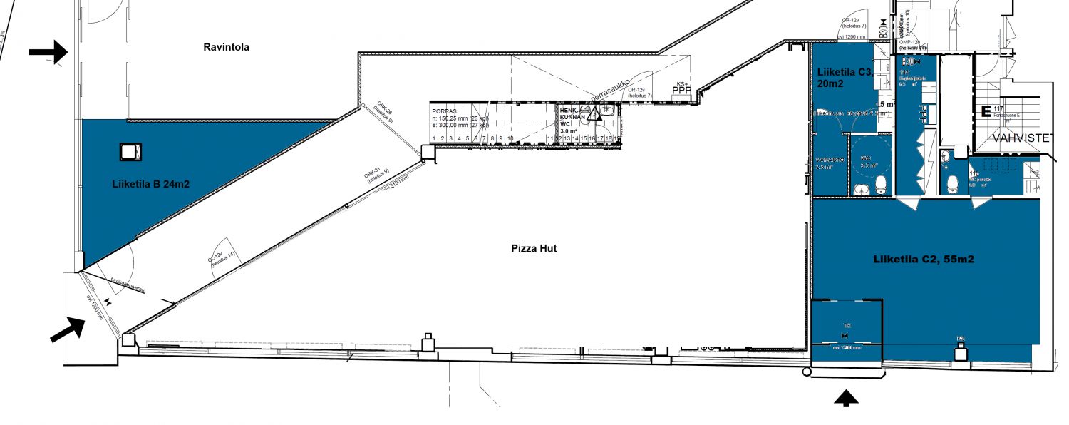
- Liiketila C2, 55m2, tyylikäs liiketila tai toimisto, johon käynti Saaristonkadulta. Isot ikkunat pitävät huolen siitä, että tämä tila huomataan!
- Liiketila B, 44m2, kiinteistön pääsisäänkäynnin vieressä liiketila, jossa kaksi isoa ikkunaa Rotuaarin suuntaan. Tila sopii mm. myymäläksi ja showroomiksi. Tilan välittömästä läheisyydestä vuokrattavissa henkilökunnan taukotila ja varasto.
Tilat remontoidaan vuokralaisen tarpeita vastaavaksi. Vuokrataso ilman valmiiksi rakennettuja pintoja 36-79€/m2 tilasta riippuen. Kysy lisätietoa hinnasta ja tiloista!
Kellarista vuokrattavissa autohallipaikkoja ja varastotilaa.
Ota yhteyttä ja suunnitellaan teille uudet tilat!
Eikö tämä tila ole sopiva? Kysy muita vaihtoehtojamme!
#liiketila #myymälä #toimisto
Vapautuu
Heti vapaa
Rakennusvuosi
1990
Kerros
1
Energiatehokkuusluokka
H (ei luokitusta)
Ota yhteyttä
Kiinteistö-Tahkola Oy
Lumijoentie 1, 90400 Oulu
Näytä puhelinnumero
0207 480 250
Henri Huotari
Näytä puhelinnumero
0405418854
Pyydä lisätietoa
