Vuokrataan tuotantotilat - Helsinki
Malminkartanonkuja 2, Konala, 00390 Helsinki #10854103
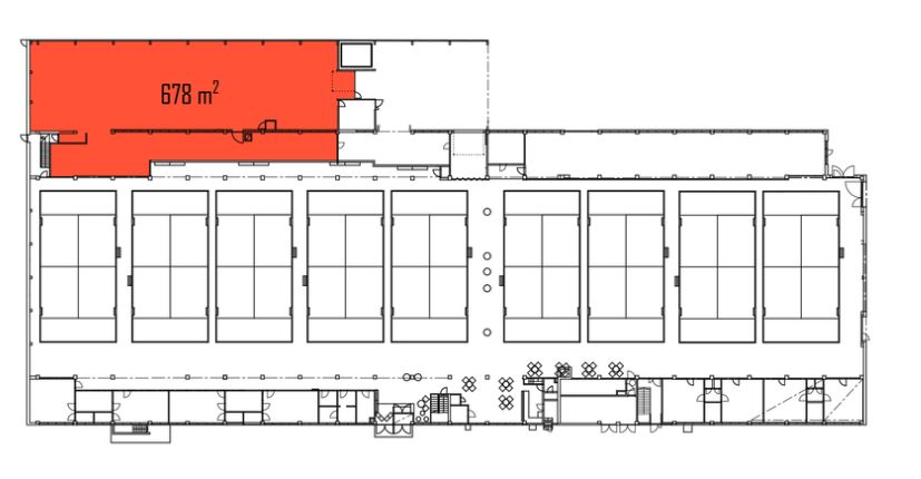
Varasto-/tuotantotilaa Helsingin Konalassa.
Vuokrattavana 678 m² katutason tuotanto-/varastotila. Tilan korkeus on kattopalkin alareunaan 3,8-3,96 m ja kapeassa osassa 3 m. Tilaan on nosto-oviyhteys, ajoaukon leveys 2,5 m ja korkeus 3,1 m. Tilan ulkopuolella on reilun kokoinen katostila, jota voi käyttää lastaus- ja purkualueena.
Malminkartanonkuja 2 sijaitsee hyvällä paikalla, Vihdintien välittömässä läheisyydessä. Kehä I:lle on lyhyt ajomatka. Kiinteistön pihalla on pysäköintitilaa. Konalan ja Malminkartanon päivittäispalvelut ovat lähellä.
Kysy lisää numerosta 044 723 4700 tai info@bref.fi. Palvelumme on tilanhakijoille ilmainen.
Bureau Real Estate Finland Oy
Lars Sonckin kaari 16, 02600 Espoo
Näytä puhelinnumero
0447234700
Bureau Real Estate Finland Oy
https://www.bref.fi