Vuokrataan varastotilat - Helsinki
Hankasuontie 9, Konala, 00390 Helsinki #10854094
Tuotanto-/varastotilaa Helsingin Konalassa.
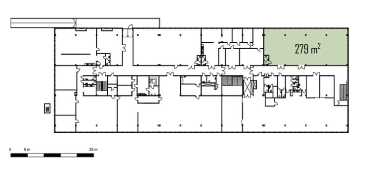
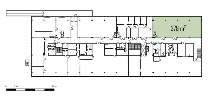
Tämä 279 m² varasto-/tuotantotila sijaitsee kiinteistön 2. kerroksessa. Tilassa on oma wc. Varaston korkeus on noin 3 metriä. Tila on raakapinnoilla, mutta sitä on mahdollista remontoida. Toiseen kerrokseen johtaa ajoramppi, ja sinne on myös tavarahissiyhteys katutasolta. Vapautuminen 1.4.2026.
Pienteollisuustoimintaan sopiva kiinteistö on rakennettu vuonna 1969 ja peruskorjattu vuosien 2009-2010 aikana. Rakennuksessa on varasto-, tuotanto- ja toimistotiloja kahdessa kerroksessa, koulutustiloja ja matalaa varastotilaa kellarikerroksessa. Kiinteistössä on lastauslaituri ja tavarahissi, jonka kantavuus on 3500kg.
Kysy lisää numerosta 044 723 4700 tai info@bref.fi. Palvelumme on tilanhakijoille ilmainen.
Bureau Real Estate Finland Oy
Lars Sonckin kaari 16, 02600 Espoo
Näytä puhelinnumero
0447234700
Bureau Real Estate Finland Oy
https://www.bref.fi