Vuokrataan toimistotilat - Tampere
Erkkilänkatu 11, Tammela, 33100 Tampere #10854010
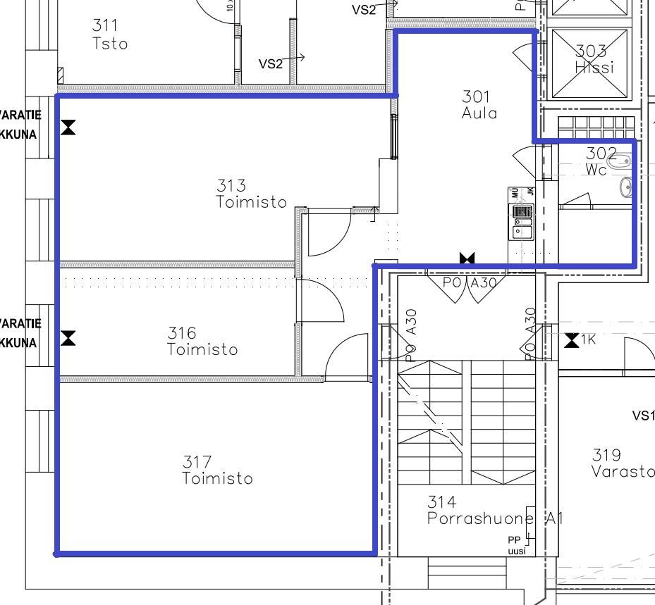
Vuokrataan kolmannen kerroksen siisti ja remontoitu 91 m² toimistotila PMK- talosta, Tammelasta. Tämä tila koostuu kolmesta toimistohuoneesta sekä aula-/ keittiötilasta. Tähän tilaan on oma hissiyhteys! Tila vapautuu sopimuksen mukaan.
PMK- talo sijaitsee Tampereen ytimessä, Tammelan alueella. Kyseessä on historiallisesti arvokas kiinteistö, joka kantaa mukanaan Tampereen tekstiiliteollisuuden perinteitä. PMK- taloa on kehitetty ja modernisoitu huimasti vuosien varrella. Tiloja on tarjolla moniin eri käyttötarkoituksiin sekä yrityksille, että organisaatioille. Kiinteistö hurmaa kävijät välittömästi vaikuttavalla arkkitehtuurillaan ja historiallisella tunnelmallaan.
Kohteen sijainti on loistavalla paikalla kävelymatkan päässä keskustasta. Lisäksi läheltä löytyy paljon erilaisia palveluita ja lounasravintoloita, jotka tukevat olennaisesti yrityksesi tai organisaatiosi toimintaa.
Kiinteistön edessä on lukittava pyöräkatos, sekä kellarissa lukittava pyörävarasto. Lisäksi PMK-talossa toimii tällä hetkellä monipuolinen Fressi-liikuntakeskus, jolla voitte lisätä yrityksenne työntekijöiden hyvinvointia!
PMK- talolla on Europarkin hallinnoima pysäköintialue, josta mahdollista vuokrata autopaikkoja. Tampereen julkinen liikenne tarjoaa erinomaiset kulkuyhteydet kiinteistölle. Rautatie-asema on vain alle kilometrin päässä.
Kysy rohkeasti lisätietoja ja varaa esittelyaikasi jo tänään!
Näkyvällä paikalla
Hissi
Hausala Oy
Erkkilänkatu 11, 33100 Tampere
Näytä puhelinnumero
050 472 7077
Mika Savikko
Näytä puhelinnumero
050 472 7077
Tero Ala-Hannula
Näytä puhelinnumero
040 508 1351
