Vuokrataan tuotantotilat, varastotilat - Helsinki
Malminkartanonkuja 2, Konala, 00390 Helsinki #10853993
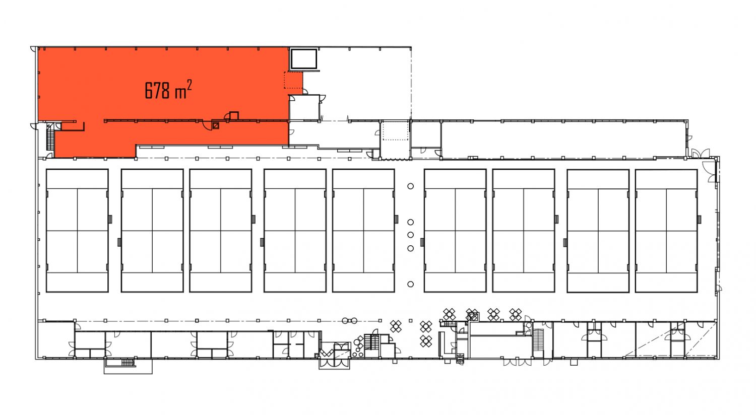
Vuokrataan lämmin tuotanto- tai varastotila rakennuksen ensimmäisestä kerroksesta. Tilan korkeus kattopalkin alareunaan 3,8-3,96 m ja kapeassa osassa 3 m. Nosto-ovi, ajoaukon leveys 2,5 m ja korkeus 3,1 m. Led-valaistus.
Tilan ulkopuolella on reilun kokoinen katostila, jota voi käyttää lastaus- ja purkualueena.
Helsingin Konalassa, osoitteessa Malminkartanonkuja 2, on kaksi rakennusta: päärakennus ja varastorakennus. Päärakennuksen tiloissa on keväällä 2022 avannut 9-kenttäinen padel-halli PadelPoint Konala.Hallit on rakennettu 1960-luvulla ja pinta-alat ovat 5900 m2 ja 900 m2.
Pihalla paikoitustilaa. Konalan ja Malminkartanon palvelut ovat lähistöllä.
Lisätietoja 020 7290 710 ja lisää kohteita premises.fi.
Kohteella ei ole lain edellyttämää energiatodistusta tai energialuokka ei tiedossa.Kerros: 1
CRE PREMISES
Puh. Näytä puhelinnumero 020 7290 710
Vantaankoskentie 14
01670 VANTAA
