Vuokrataan - Helsinki
Malminkartanonkuja 2, Konala, 00390 Helsinki #10853956
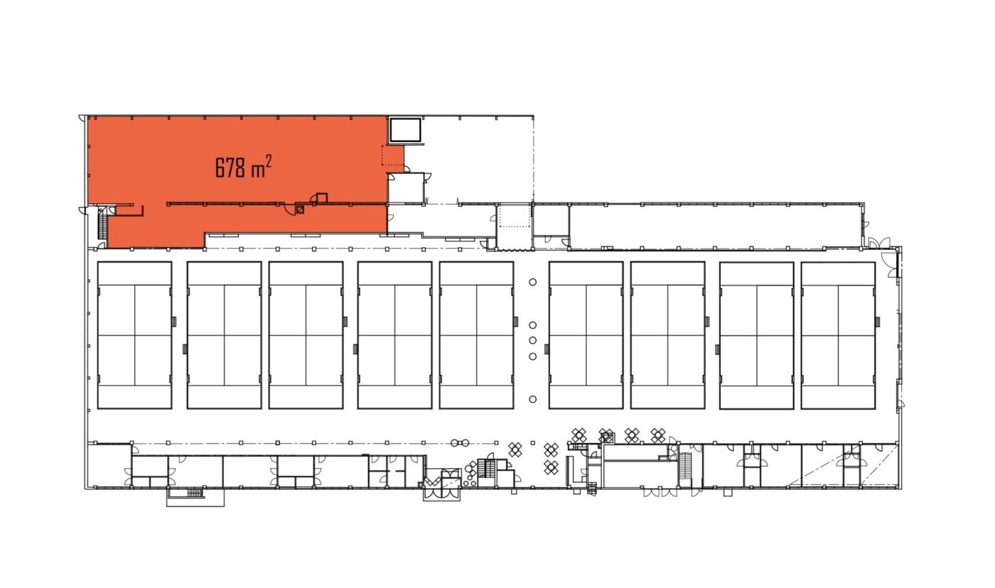
Vuokrataan 678 m2 lämmin tuotanto- tai varastotila rakennuksen ensimmäisestä kerroksesta. Tilan korkeus kattopalkin alareunaan 3,8-3,96 m ja kapeassa osassa 3 m. Nosto-ovi, ajoaukon leveys 2,5 m ja korkeus 3,1 m. Led-valaistus.
Tilan ulkopuolella on reilun kokoinen katostila, jota voi käyttää lastaus- ja purkualueena.
Kk-vuokra 5000 € + alv (sis. lämmön, sähkön ja veden).
Kiinteistö sijaitsee valtaväylien (Vihdintie, Kehä I) tuntumassa. Pihalla paikoitustilaa. Konalan ja Malminkartanon palvelut ovat lähistöllä.
Kysy lisää: jouko.raitanen@rhg.fi/0504695444
RHG Real Estate
Hämeenkatu 2 B20, 20500 Turku
Jouko Raitanen
Näytä puhelinnumero
050 469 5444
