Vuokrataan toimistotilat - Helsinki
Satamaradankatu 1, Vallila, 00510 Helsinki #10853948
Teollisuushenkistä toimistotilaa Helsingin Vallilassa.
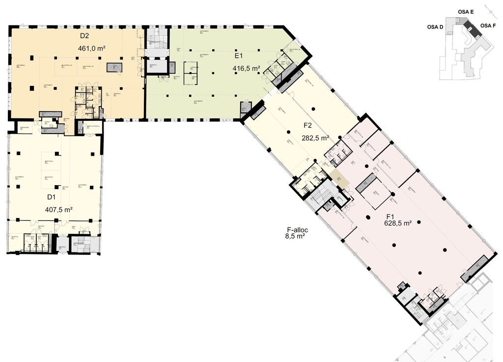
Tämä 407,5 m² kokoinen tila sijaitsee kiinteistön 4. kerroksessa. Avara tilakorkeus, industrial-henkiset ikkunat ja näkyviin jätetty talotekniikka luovat uniikin tunnelman toimistoon.
Satamaradankatu 1 eli Colony Vallila on 1920-luvulla valmistunut toimistokiinteistö, joka sijaitsee keskellä Vallilan kaupunginosaa, Helsingin kantakaupungin vanhaa teollisuusaluetta. Rakennus on peruskorjattu vuonna 2020 ja kohteen palveluvalikoimaa on monipuolistettu. Sisääntulokerroksessa on uusi kaupallinen kuntosali ja aulapalvelu, ja kellarista löytyvät ensiluokkaiset sosiaalitilat työmatkapyöräilijöille. 2. kerroksessa sijaitsee viihtyisä Colony Lounge, josta löytyy myös vuokrattavia neuvottelutiloja. Talon alla suuret lastauslaiturit lastaustaskuilla ja kerroksiin vie tavarahissi.
Helsingin keskusta on vain vartin metromatkan päässä ja Helsinki-Vantaan lentoasemalle ajaa 40 minuutissa. Kiinteistön ympärillä on useita bussi- ja raitiovaunupysäkkejä, joista lähimmät sijaitsevat aivan toimistotalon edessä. Pasilan rautatieasema on 1,5 kilometrin päässä ja Sörnäisten metroasemalle kävelee vain 10 minuutissa.
Vallila on nykyään monipuolinen kaupunkialue, josta löytyy laaja valikoima ravintoloita, kahviloita ja muita palveluita. Tien toisella puolella sijaitseva jatkuvasti kehittyvä Konepajan alue tarjoaa loistavat harrastus- ja vapaa-ajanvieton mahdollisuudet työn vastapainoksi.
Kysy lisää numerosta 044 723 4700 tai info@bref.fi. Palvelumme on tilanhakijoille ilmainen.
Hissi
Bureau Real Estate Finland Oy
Lars Sonckin kaari 16, 02600 Espoo
Näytä puhelinnumero
0447234700
Bureau Real Estate Finland Oy
https://www.bref.fi