Vuokrataan liiketilat - Helsinki
Ajomiehentie 1, Konala, 00390 Helsinki #10853943
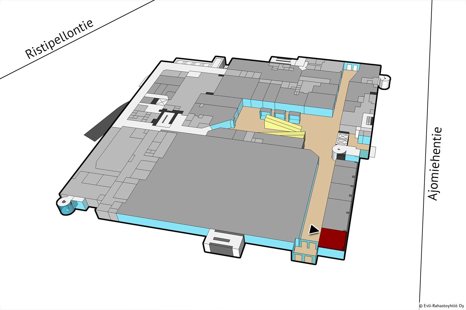
Kompakti liiketila loistopaikalla kauppakeskuksen katutasossa. Tämä muuttovalmis tila sijaitsee heti sisäänkäynnin vieressä K-Supermarketin kassoja vastapäätä. Tilassa ei ole omia sosiaalitiloja, henkilökunnan käytössä on kauppakeskuksen yhteiset sosiaalitilat.
Osoite
Ajomiehentie 1, 00390 Helsinki
Tilatyyppi
Liiketilaa
42 m2
Kiinteistö
Kauppakeskus Ristikko
Pysäköinti
Pysäköintipaikkoja löytyy runsaasti talon molemmin puolin olevilta pysäköintialueita ja talon alla olevasta pysäköintihallista.
Palvelut
Henkilöstöravintola, kuntosali
Muuta
Tilan ominaisuudet:
Vapautuu
Heti vapaa
Kerros
Katutaso
Energiatehokkuusluokka
B
Katutasossa
Ota yhteyttä
Evli
Aleksanterinkatu 19, 00100 Helsinki
Näytä puhelinnumero
020 155 8610
Paulariina Liuhtonen
Näytä puhelinnumero
020 130 2157
Elina Gröning
Näytä puhelinnumero
041 466 7401
Saara Raitaranta
Näytä puhelinnumero
040 504 3345
Pyydä lisätietoa
