Vuokrataan toimistotilat - Espoo
Bertel Jungin aukio 5, Leppävaara, 02600 Espoo #10853876
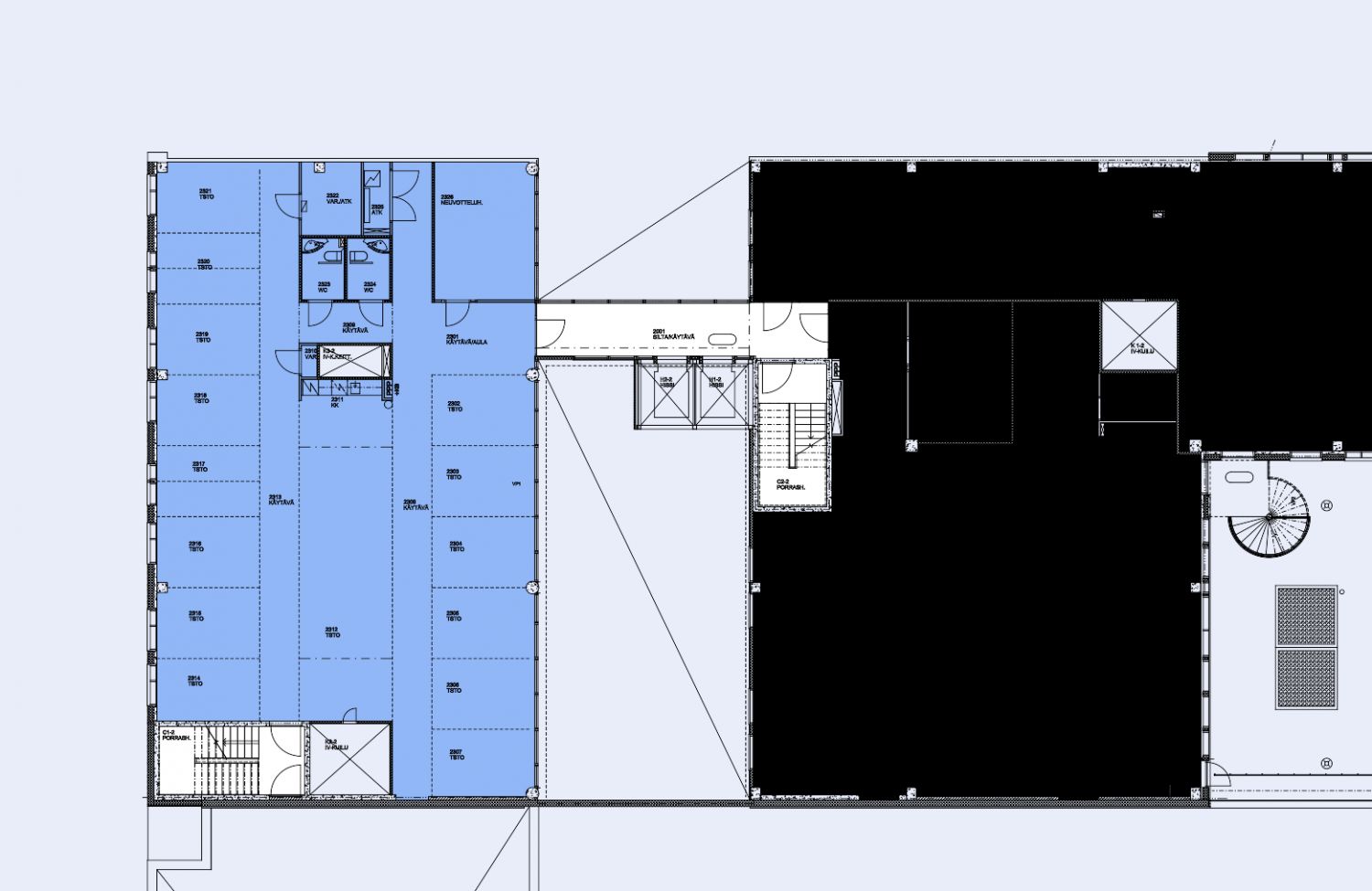
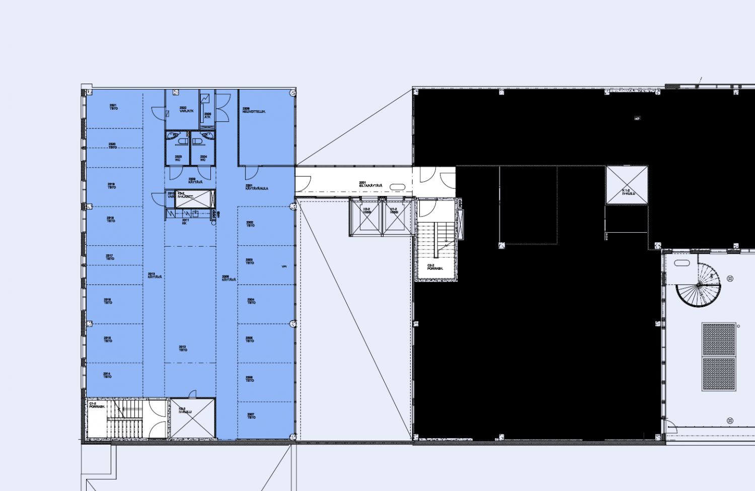
Vuokrataan hyvässä kunnossa oleva 2. kerroksen toimistotila. Avara tila koostuu kahdesta avotilasta ja neuvotteluhuoneesta. Näiden lisäksi tilassa on toimistohuoneita ja keittiö-/ruokailualue. Ohessa havainnollistavia kuvia.
Espoon Albergan toimitilat ovat helposti saavutettavissa; erinomaiset yhteydet moottoriteiltä, vieressä nopea junayhteys Helsingistä ja lentokenttäkin on vain puolen tunnin ajomatkan päässä. Nämä toimitilat sopivat erinomaisesti väliaikaiseen pysähdykseen, tiimin tapaamiseen tai pidempiaikaiseen työskentelyyn. Käytössäsi täydet business centre- palvelut mm. aulapalvelu joka vastaanottaa vieraasi ammattitaitoisesti ja on aina valmis avuksi.
Lisätietoja 020 7290 710. Lisää kohteita www.premises.fi
Kohteella ei ole lain edellyttämää energiatodistusta tai energialuokka ei tiedossa.Kerros: 2
Juna-asema 5 min
Lentoasema 25 min
CRE PREMISES
Puh. Näytä puhelinnumero 020 7290 710
Vantaankoskentie 14
01670 VANTAA
