Vuokrataan toimistotilat, liiketilat - Raisio
Kellarimäenkatu 1, Kerttula, 21200 Raisio #10853825
Liike/toimistotilaa Raisiossa
Osoite
Kellarimäenkatu 1, 21200 Raisio
Tilatyyppi
Toimistotilaa
430 m2
Liiketilaa
430 m2
Yhteensä
430 m2
Pysäköinti
pihalla
Muuta
Vuokrattavana näkyvällä ja hyvällä sijainnilla Raision Kellarimäentiellä sijaitseva katutason liiketila, osoitteessa Kellarimäentie 1.
Vapautuu kesällä 2026, mahdollisesti jo aiemmin.
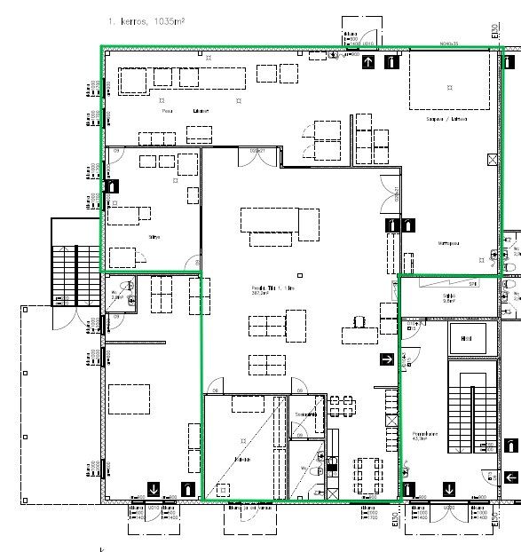
Tila on tällä hetkellä jaettu pesulakäyttöön soveltuvalla pohjaratkaisulla, mutta se muokataan uuden vuokralaisen tarpeiden mukaan.
Pohjaratkaisu tarjoaa valmiita tiloja eri toimintoihin ja soveltuu monenlaiseen käyttöön, kuten liiketoimintaan, palvelutilaksi tai asiakaspalveluun.
Tilassa on avoin alue, kaksi erillistä huonetta sekä takaosan varastotila, johon on käynti nosto-oven kautta.
Alueella on hyvät kulkuyhteydet ja runsaasti pysäköintitilaa niin asiakkaille kuin henkilökunnalle.
Tervetuloa tutustumaan, varaathan välittäjältä oman esittelyaikasi.
Voit kysyä meiltä myös muita sopivia vaihtoehtoja, kauttamme löydät juuri Teidän tarpeisiinne sopivat tilat.
Palvelumme on tilanhakijalle veloitukseton!
Vapautuu kesällä 2026, mahdollisesti jo aiemmin.
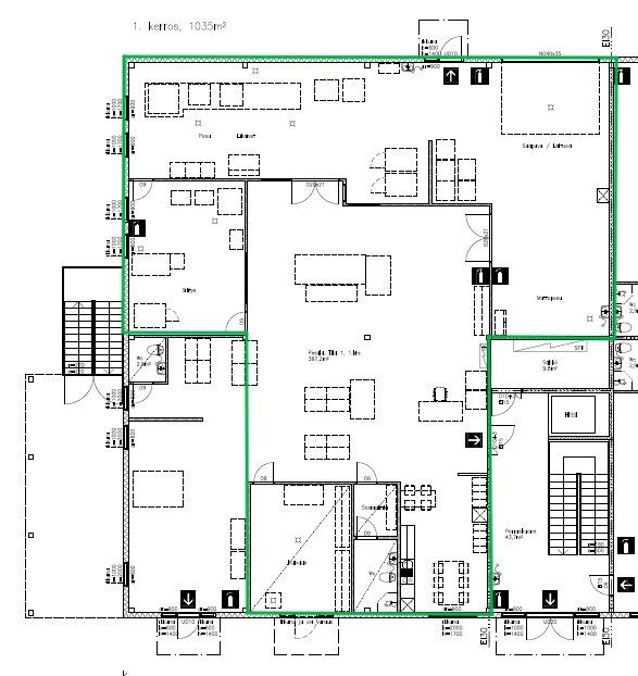
Tila on tällä hetkellä jaettu pesulakäyttöön soveltuvalla pohjaratkaisulla, mutta se muokataan uuden vuokralaisen tarpeiden mukaan.
Pohjaratkaisu tarjoaa valmiita tiloja eri toimintoihin ja soveltuu monenlaiseen käyttöön, kuten liiketoimintaan, palvelutilaksi tai asiakaspalveluun.
Tilassa on avoin alue, kaksi erillistä huonetta sekä takaosan varastotila, johon on käynti nosto-oven kautta.
Alueella on hyvät kulkuyhteydet ja runsaasti pysäköintitilaa niin asiakkaille kuin henkilökunnalle.
Tervetuloa tutustumaan, varaathan välittäjältä oman esittelyaikasi.
Voit kysyä meiltä myös muita sopivia vaihtoehtoja, kauttamme löydät juuri Teidän tarpeisiinne sopivat tilat.
Palvelumme on tilanhakijalle veloitukseton!
Vapautuu
Kysy
Ota yhteyttä
Tuloskiinteistöt Oy
Kauppiaskatu 11 C 23, 20100 Turku
Näytä puhelinnumero
(02) 274 3500
Ritva Nuotio
Commercial Real Estate Advisor LKV, KED
Näytä puhelinnumero
+358 50 5261 744
Karoliina Eklund
Leasing Support Specialist
Näytä puhelinnumero
+358 40 017 8999
Pyydä lisätietoa
