Vuokrataan toimistotilat - Helsinki
John Stenbergin ranta 2, 00530 Helsinki #10853793
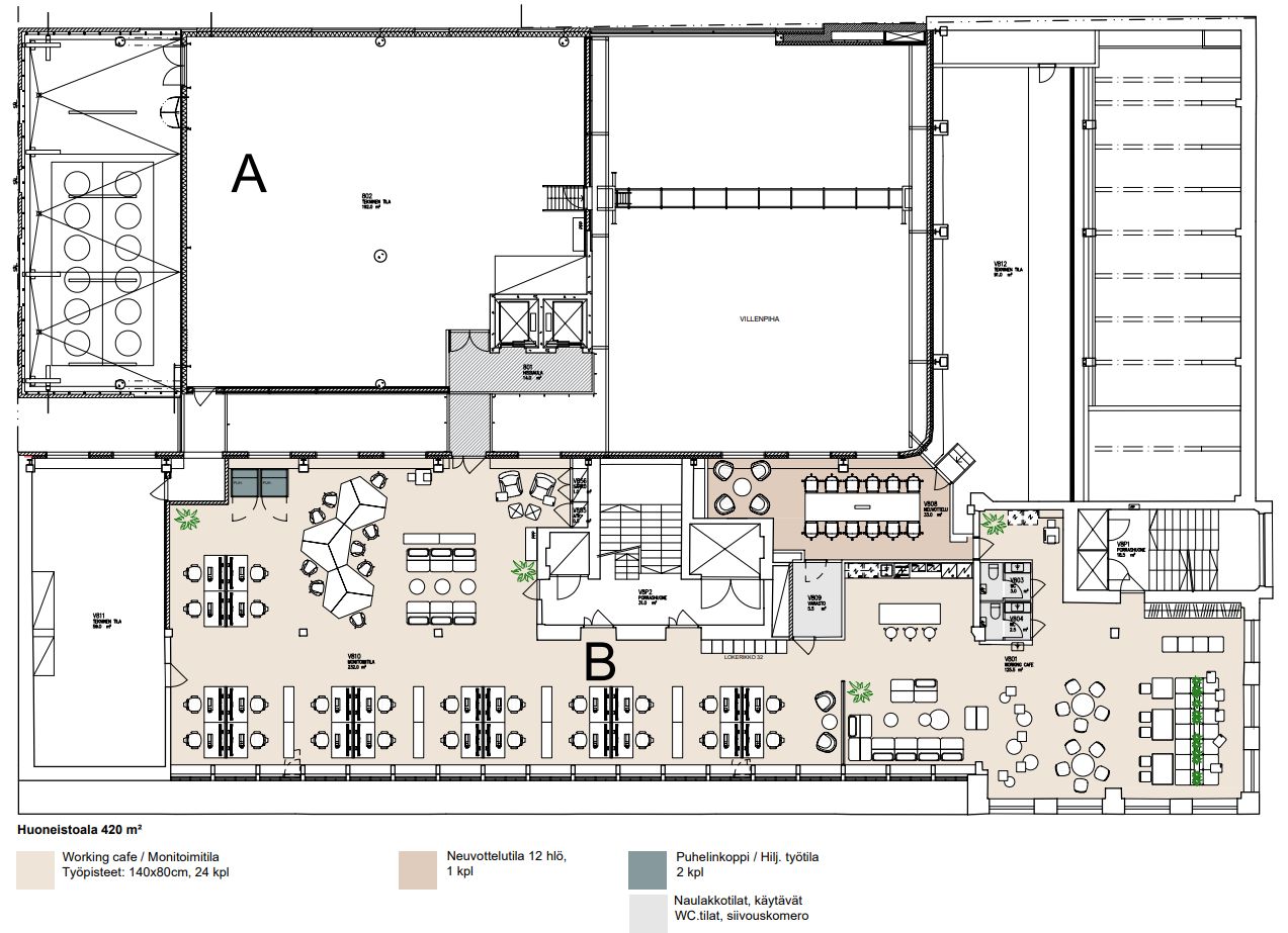
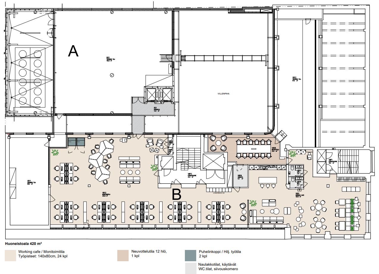
Vuokrattavana katutason 153 m2 kivijalkaliiketila, voidaan jakaa kahdeksi. Hieno sijainti Hakaniemen palveluiden ja Pitkänsillan kupeessa. Runsaasti ohikulkuliikennettä ja jalankulkijoita. Ei ravintolaksi.
John Stenbergin ranta 2 – John S. on hieno punatiilinen talo aivan Pitkänsillan kupeessa, Helsingin Hakaniemessä. Talo toimi pitkään Wärtsilän pääkonttorina, ja nyt siitä on rakentunut upea monen käyttäjän toimistotalo. Kiinteistö koostuu kahdesta osasta. Vanhempi puoli on rakennettu vuonna 1938, ja se on Museoviraston suojelema. Kiinteistössä tehtiin 2019 yleisten tilojen remontti, jossa uudistettiin talon ilmettä ja henkeä.
John Stenbergin ranta 2 on jykevä toimistotalo, joka tarjoaa yrityksille modernit tilat erinomaisten liikenneyhteyksien varrelta. Lähellä on monipuoliset palvelut, ja talon omatkin palvelut ovat ensiluokkaiset. Aulapalvelun lisäksi talossa on oma henkilöstöravintola, vuokrattavia neuvottelutiloja sekä komeat edustustilat. Kiinteistössä on myös kuntosali, parkkihalli ja sisäpaikkoja pyörille.
