Vuokrataan toimistotilat - Helsinki
Valimotie 21, Pitäjänmäki, 00380 Helsinki #10853791
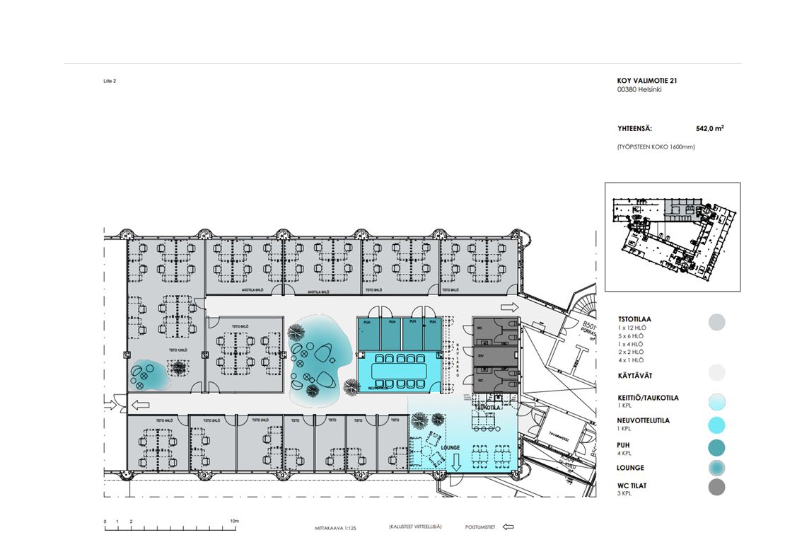
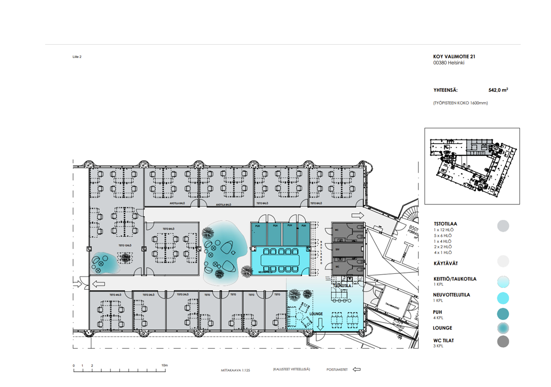
Valimo 21 on käynyt läpi täysimittaisen uudistuksen vain muutama vuosi sitten, ja sen kolme toisiinsa yhdistyvää rakennusta tarjoavat viihtyisiä ja helposti muokattavia toimitiloja eri tarpeisiin.
Kiinteistössä on alueen kattavin palvelukokonaisuus: käytössä on modernit kokoustilat ja 140 hengen auditorio. Valoisalla atriumpihalla toimii viihtyisä kahvila, ja Ravintola Valaja tarjoaa premium-tasoista lounasta sekä laadukkaita kokoustarjoiluja.
Sijainti on erinomainen myös julkisilla liikkuville – Valimon juna-asema on vain muutaman askeleen päässä. Autolla pääsee sujuvasti Vihdintieltä, ja Kehä I:lle on vain muutaman kilometrin matka. Pysäköintitilaa on runsaasti kahdessa omassa parkkihallissa sekä ulkona sijaitsevalla parkkipaikalla. Lisäksi kiinteistössä on lastauslaituri ja tavarahissit.
Me Croisettella autamme teitä löytämään teille parhaat tilat! Olemme puolueettomia asiantuntijoita ja tunnemme toimitilamarkkinat, talot sekä tilat vankalla kokemuksella. Meillä on välityksessä kaikki toimitilat ja tiedämme niiden alustavat vuokratasot.
Tehtävämme on tehdä toimitilahaustanne onnistunutta ja helppoa. Saamme palkkiomme kiinteistönomistajalta, joten sinulle palvelumme on täysin maksuton.
Croisette Real Estate Partner
Erottajankatu 5 A 6, 00130 Helsinki
Näytä puhelinnumero
+358 400 585 857
Croisette Vuokraus
Näytä puhelinnumero
+358400585857
