Vuokrataan toimistotilat - Helsinki
Itämerenkatu 3, Ruoholahti, 00180 Helsinki #10853752
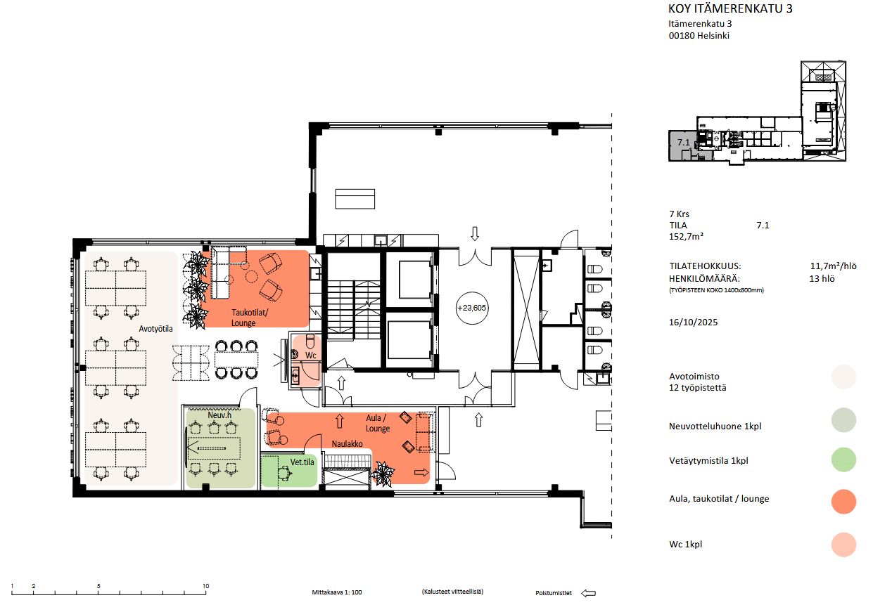
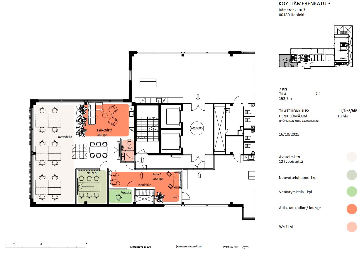
Vuokrattavana muuntojoustavaa ja modernia toimitilaa Helsingin Ruoholahdesta. Ohessa havainnollistavia kuvia.
Kiinteistössä on muun muassa ravintola ja kuntosali, ja kaikki Ruoholahden palvelut ovat lähellä. Toimistorakennukseen on loistavat yhteydet niin julkisilla kulkuvälineillä kuin omalla autollakin. Metroasema on kivenheiton päässä ja läheltä kulkevat raitiovaunulinjat 6, 7, 8 ja 9. Länsiväylältä pääsee kiinteistöön kätevästi omalla autolla välttäen Helsingin keskustan ruuhkat. Kiinteistön omassa pysäköintihallissa on runsaasti parkkitilaa.
Lisätietoja 020 7290 710, lisää kohteita www.premises.fi
Kohteella ei ole lain edellyttämää energiatodistusta tai energialuokka ei tiedossa.Kerros: 7
Raitiovaunu 200m
Bussipysäkki alle 100m
Juna-asema 1.5km
CRE PREMISES
Puh. Näytä puhelinnumero 020 7290 710
Vantaankoskentie 14
01670 VANTAA
