Vuokrataan toimistotilat - Helsinki
Valimotie 21, Pitäjänmäki, 00380 Helsinki #10853708
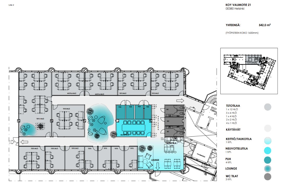
Tehokas ja tilava toimistohuoneisto vapaana Pitäjänmäellä, Valimon aseman vieressä. Valimontie 21 on uudistettu kokonaisvaltaisesti ja muuttovalmiissa kiinteistössä on mm. oma kahvila ja premiumtason lounasravintola. Tavarahissit ja lastauslaiturit tuovat lisäarvoa tähän modernisoituun kiinteistöön. Ohessa havainnollistavia kuvia kiinteistön tiloista.
Kiinteistöstä löytyy aulapalvelu, kuntosali, kattavat kokoustilat ja auditorio 140 henkilölle, kahvila sekä tasokas lounasravintola kokoustarjoilupalveluineen. Pysäköintipaikkoja löytyy kiinteistön kahdesta omasta parkkihallista sekä piha-alueelta.
Lisätietoja numerosta 020 7290 710. Lisää kohteita osoitteessa www.premises.fi.
Kohteella ei ole lain edellyttämää energiatodistusta tai energialuokka ei tiedossa.Kerros: 5
CRE PREMISES
Puh. Näytä puhelinnumero 020 7290 710
Vantaankoskentie 14
01670 VANTAA
