Vuokrataan toimistotilat - Kuopio
Asevarikontie 15, Pikku Neulamäki / Pitkälahti, 70800 Kuopio #10853700
Toimistotila
Osoite
Asevarikontie 15, 70800 Kuopio
Tilatyyppi
Toimistotilaa
14 - 250 m2
Kiinteistö
Tyylikästä toimistotilaa Pikku Neulamäestä 14 - 250 m²
Kiinteistön eteläpäädyssä tasokasta ja tyylikästä toimistotilaa vuokrattavana, joka sopii hyvin esim. kuljetusliikkeelle, asiantuntijayritykselle, tilitoimistolle, ITC-alantoimijalle ja sellaiselle toimijalle, joka haluaa toimia hyvien ja vaivattomien kulkuyhteyksien varrella ja lähellä Vitostietä. Tähän toimistoon on helppo saapua töihin.
Tässä toimistotilakokonaisuudessa ovat fasiliteetit justiinsa kohdallaan.
Tilat ovat muuttovalmiina ja nykyaikaisesti kalustetut.
Valmiina ovat mm.
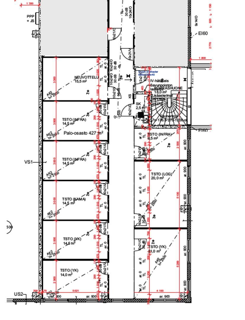
toimistohuoneita 11 kappaletta
toimistohuoneet kokoluokassa n. 14 - 21 m²
työpöydät + työtuolit, kalusteita työhuoneissa valmiina
neuvotteluhuone n. 15 m² kalustettuna
wc-tilat
siivouskomero
tyylikäs laminaattilattia
läpitalon toimistotilat
koneellinen ilmavaihto
viilennys
kuituyhteys
monitoimitulostin
kaikki kunnossa ja uudehkot tilat
Kiinteistö ja sijainti
Pikku Neulamäessä Savon Kuljetuksen terminaalin päädyssä sijaitsevat toimistotilat.
Tulitpa etelästä tai pohjoisesta tai lännen suunnasta tai Saaristokaupungin suunnasta, niin tontille pääset helposti.
Julkiset liikenneyhteydet ovat toimivat ja kävellen pysäkiltä n. 10 min.
Parkkipaikkoja kiinteistön isolla piha-alueella + tolppapaikkoja + latauspaikkoja.
Erillinen polkupyöräkatos.
Ota yhteyttä ja puidaan lisää!
Kiinteistön eteläpäädyssä tasokasta ja tyylikästä toimistotilaa vuokrattavana, joka sopii hyvin esim. kuljetusliikkeelle, asiantuntijayritykselle, tilitoimistolle, ITC-alantoimijalle ja sellaiselle toimijalle, joka haluaa toimia hyvien ja vaivattomien kulkuyhteyksien varrella ja lähellä Vitostietä. Tähän toimistoon on helppo saapua töihin.
Tässä toimistotilakokonaisuudessa ovat fasiliteetit justiinsa kohdallaan.
Tilat ovat muuttovalmiina ja nykyaikaisesti kalustetut.
Valmiina ovat mm.
toimistohuoneita 11 kappaletta
toimistohuoneet kokoluokassa n. 14 - 21 m²
työpöydät + työtuolit, kalusteita työhuoneissa valmiina
neuvotteluhuone n. 15 m² kalustettuna
wc-tilat
siivouskomero
tyylikäs laminaattilattia
läpitalon toimistotilat
koneellinen ilmavaihto
viilennys
kuituyhteys
monitoimitulostin
kaikki kunnossa ja uudehkot tilat
Kiinteistö ja sijainti
Pikku Neulamäessä Savon Kuljetuksen terminaalin päädyssä sijaitsevat toimistotilat.
Tulitpa etelästä tai pohjoisesta tai lännen suunnasta tai Saaristokaupungin suunnasta, niin tontille pääset helposti.
Julkiset liikenneyhteydet ovat toimivat ja kävellen pysäkiltä n. 10 min.
Parkkipaikkoja kiinteistön isolla piha-alueella + tolppapaikkoja + latauspaikkoja.
Erillinen polkupyöräkatos.
Ota yhteyttä ja puidaan lisää!
Vapautuu
Kysy
Kerros
Katutaso
Ota yhteyttä
Logistila Oy
Ankkuritie 1, 70460 KUOPIO
Timo Puustinen
Näytä puhelinnumero
0400 33 00 30
Pyydä lisätietoa
