Vuokrataan toimistotilat - Raisio
Kellarimäenkatu 1, Kerttula, 21200 Raisio #10853685
Uutta ja laadukasta toimistotilaa Raisiosta
Osoite
Kellarimäenkatu 1, 21200 Raisio
Tilatyyppi
Toimistotilaa
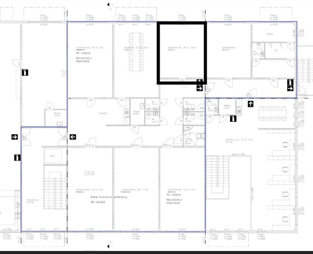
29 m2
Vuokra
460 e
Pysäköinti
pihalla
Muuta
Vuokrattavana laadukasta, valoisaa 2.kerroksen toimistotilaa Raision Kerttulan alueelta.
2.kerroksen 29m2 toimistohuone.
Vuokralaisella on käytössään yhteiskäyttöinen taukotila, neuvottelutila sekä sauna.
Vesi, sähkö ja lämmitys sisältyy vuokraan.
Tervetuloa tutustumaan, varaathan välittäjältä oman esittelyaikasi. Voit kysyä meiltä myös muita sopivia vaihtoehtoja, kauttamme löydät juuri Teidän tarpeisiinne sopivat tilat.
Palvelumme on tilanhakijalle veloitukseton!
2.kerroksen 29m2 toimistohuone.
Vuokralaisella on käytössään yhteiskäyttöinen taukotila, neuvottelutila sekä sauna.
Vesi, sähkö ja lämmitys sisältyy vuokraan.
Tervetuloa tutustumaan, varaathan välittäjältä oman esittelyaikasi. Voit kysyä meiltä myös muita sopivia vaihtoehtoja, kauttamme löydät juuri Teidän tarpeisiinne sopivat tilat.
Palvelumme on tilanhakijalle veloitukseton!
Vapautuu
Kysy
Kerros
2.
Ota yhteyttä
Tuloskiinteistöt Oy
Kauppiaskatu 11 C 23, 20100 Turku
Näytä puhelinnumero
(02) 274 3500
Ritva Nuotio
Commercial Real Estate Advisor LKV, KED
Näytä puhelinnumero
+358 50 5261 744
Karoliina Eklund
Leasing Support Specialist
Näytä puhelinnumero
+358 40 017 8999
Pyydä lisätietoa
