Vuokrataan toimistotilat - Kauniainen
Kauniaistentie 7, 02700 Kauniainen #10853684
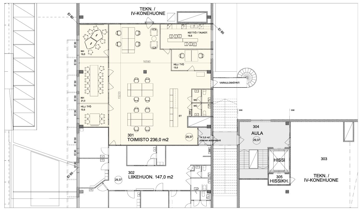
Vuokrattavana siistiä, valoisaa toimistotilaa kauppakeskuksen sisäänkäynnin yläpuolella 3-kerroksessa.
Osoite
Kauniaistentie 7, 02700 Kauniainen
Tilatyyppi
Toimistotilaa
238,5 m2
Tilajako
Jaettavissa
Yhdistettävissä
Kiinteistö
Vuokrattavana siistiä, valoisaa kulmatoimistotilaa kauppakeskuksen sisäänkäynnin yläpuolella 3-kerroksessa. Tilassa on avotila, työhuoneet, neuvottelutila, oma keittiö ja asianmukaiset sosiaalitilat.
Sijainti
Kauniainen
Pysäköinti
Kiinteistössä on runsaasti pysäköintitilaa mm. 2. kerroksen pysäköintikannella.
Palvelut
-Henkilöstöravintola
-Kuntosali
-Kuntosali
Kulkuyhteydet
-Bussipysäkki 100m
-Juna-asema 200m
-Lentoasema 17,6km
-Juna-asema 200m
-Lentoasema 17,6km
Vapautuu
Heti
Kerros
3
Energiatehokkuusluokka
Ei lain edellyttämää energiatodistusta
Näkyvällä paikalla
Jaettavissa
Hissi
Ota yhteyttä
REALIUM OY LKV
Tammasaarenkatu 1, 00180 Helsinki
Vaihde:
Näytä puhelinnumero
010 326 346
Tuomo Mäkelä
tuomo.makela@realium.fi
p.
Näytä puhelinnumero
044 050 1158
Joel Keto
joel.keto@realium.fi
p.
Näytä puhelinnumero
045 317 0330
KAIKKI TILAVAIHTOEHDOT KERRALLA!
SOITA - MEILAA JA TILAA NÄYTTÖ!
Ilmainen palvelu tilanhakijoille.
Kartoitamme parhaat tilavaihtoehdot.
Kaikki kohteet eivät ole netissä.
Pyydä lisätietoa
