Vuokrataan toimistotilat - Kuopio

Kartanonkatu 8, 70700 Kuopio #10853680

Vuokrattavana siistejä ja tehokkaita pienikokoisia toimistohuoneita Kuopion Leväsen yritysalueella. Tilat soveltuvat erinomaisesti yhden tai muutaman henkilön työskentelyyn ja tarjoavat helpon, kustannustehokkaan ratkaisun yritystoimintaan hyvillä kulkuyhteyksillä.

Soita ja kysy lisää tai varaa näyttöaika.

Osoite
Kartanonkatu 8, 70700 Kuopio
Tilatyyppi
Toimistotilaa
11 m2
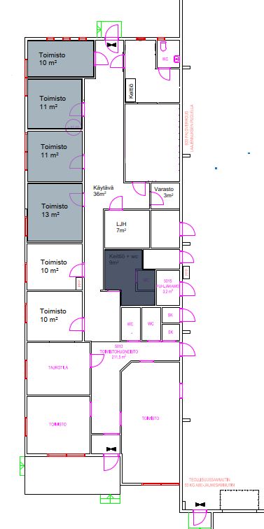
Pohjapiirros
Kiinteistö
Kartanonkatu 8 on toimitilakäyttöön suunniteltu kiinteistö, jossa toimii useita eri alojen yrityksiä. Kiinteistö tarjoaa toimivan ja selkeän ympäristön pienimuotoiseen yritystoimintaan. Tilat ovat helposti saavutettavissa ja soveltuvat pitkäaikaiseen toimistokäyttöön.
Sijainti
Kiinteistö sijaitsee Kuopion Leväsen yritys- ja teollisuusalueella, erinomaisella paikalla kaupungin eteläosassa. Alue on tunnettu hyvästä saavutettavuudestaan ja monipuolisesta yritystoiminnasta. Keskustan palvelut ovat lyhyen ajomatkan päässä.
Ympäristö
Levänen on aktiivinen yritysalue, jossa toimii runsaasti eri alojen yrityksiä, palveluntarjoajia ja liiketiloja. Alueen ympäristö on selkeästi yrityskäyttöön painottunut, ja se tarjoaa rauhallisen mutta toiminnallisen työympäristön arjen työskentelyyn.
Pysäköinti
Kiinteistön pihassa on pysäköintipaikkoja. Pysäköinti on vaivatonta sekä henkilökunnalle että vierailijoille.
Kiinteistön pihalla sijaitsee sähkö/hybridiauton latauspiste (erillinen veloitus).
Palvelut
Läheisyydessä sijaitsee monipuolisia palveluita, kuten kauppakeskusalue, ravintoloita, huoltoasemia ja erikoisliikkeitä. Päivittäiset palvelut ovat helposti saavutettavissa lyhyen matkan päässä kiinteistöstä.
Kulkuyhteydet
Kohteeseen on hyvät kulkuyhteydet niin omalla autolla kuin julkisilla kulkuvälineillä. Alue sijaitsee lähellä valtateitä ja päätieyhteyksiä, mikä tekee liikkumisesta sujuvaa eri puolilta Kuopiota.
Vapautuu
Heti
Kerros
1
Huoneiden lukumäärä
1
Ota yhteyttä

Fine LKV

Minna Moisio
Toimitilavuokraus, LKV
Näytä puhelinnumero 0505417349
minna@finelkv.fi
Leväsentie 2, 70700 Kuopio
Yliopistonkatu 28, 40100 Jyväskylä

Toimin kaupallisena managerina ja toimitilavuokraajana, otathan yhteyttä jos mietit mahdollisia muutostöitä tai esillä olevista toimitiloista ei löydy sitä mitä etsit. Selvitetään muut tila mahdollisuudet. Asiakaslähtöisyys on minulle tärkeää sekä asioiden sujuvuus. Ota yhteyttä, mielelläni autan sinua.

Pyydä lisätietoa

Kohteesta Kartanonkatu 8, Kuopio

 

B2B palvelut

MARKKINOINTI

Tavoita oikea kohderyhmä!

LASTAUSRATKAISUT

Mainos
Lastauksien ratkaisut tehokkaammin ja turvallisemmin