Vuokrataan toimistotilat - Espoo
Tarvonsalmenkatu 15, Perkkaa, 02600 Espoo #10853674
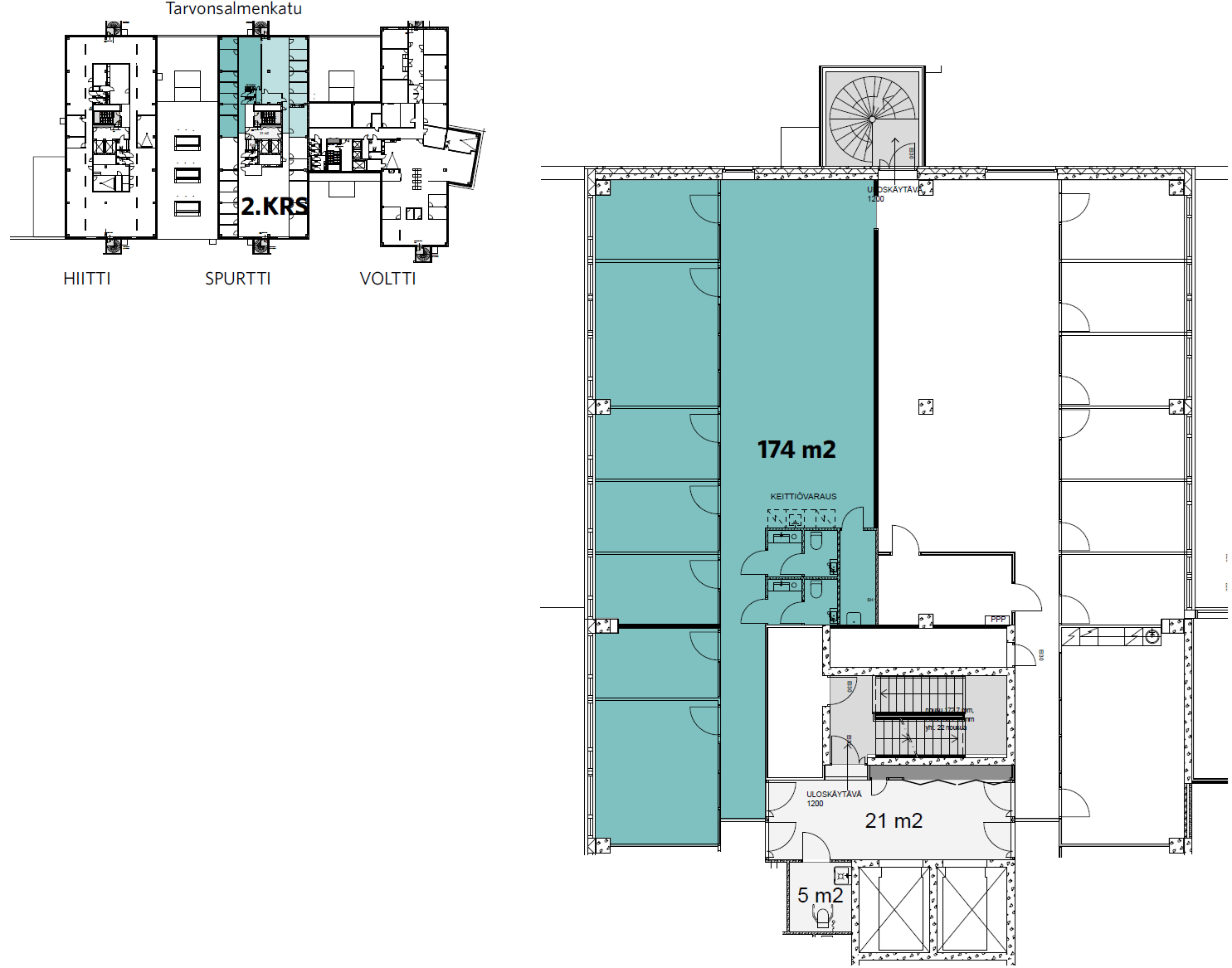
Moderni 174 m² toimistotila Derby Business Parkissa
Osoite
Tarvonsalmenkatu 15, 02600 Espoo
Tilatyyppi
Toimistotilaa
174 m2
Pohjapiirros
Kiinteistö
Tehokas ja moderni 174 m²:n toimistotila rakennuksen toisessa kerroksessa. Tila muodostuu useista erillisistä huoneista, joita täydentää toimiva avotila, mahdollistaen joustavan työskentelyn niin keskittymistä vaativiin tehtäviin kuin tiimityöhön. Pohjaratkaisu soveltuu erinomaisesti pienemmälle tai keskisuurelle organisaatiolle, ja omat wc-tilat lisäävät arjen sujuvuutta ja käyttömukavuutta.
Vuonna 2013 valmistunut kiinteistö edustaa nykyaikaista ja vastuullista toimistorakentamista. Energiatehokkuuteen ja kiinteistön kestävään käyttöön on kiinnitetty huomiota modernien teknisten ratkaisujen avulla, mikä tukee viihtyisää ja terveellistä työympäristöä sekä vastaa tämän päivän yritysten vastuullisuusvaatimuksiin.
Käytössä ovat aulapalvelut, ravintola, kahvila ja catering-palvelut, jotka palvelevat niin arjen lounastarpeissa kuin asiakastilaisuuksissa. Lisäksi kiinteistössä on neuvotteluhuoneita, kuntosali, sauna sekä lainapyöriä työmatkaliikkumista varten. Sähköauton latauspisteet, siivous- ja kiinteistöpalvelut sekä vartiointi täydentävät kokonaisuuden.
Sijainti Tarvonsalmenkadulla tarjoaa erinomaiset liikenneyhteydet, sillä kiinteistö sijaitsee aivan Turunväylän läheisyydessä. Helppo saavutettavuus niin autolla kuin joukkoliikenteellä tekee tilasta käytännöllisen valinnan ja tukee sujuvaa arkea henkilöstölle ja vierailijoille.
Vuonna 2013 valmistunut kiinteistö edustaa nykyaikaista ja vastuullista toimistorakentamista. Energiatehokkuuteen ja kiinteistön kestävään käyttöön on kiinnitetty huomiota modernien teknisten ratkaisujen avulla, mikä tukee viihtyisää ja terveellistä työympäristöä sekä vastaa tämän päivän yritysten vastuullisuusvaatimuksiin.
Käytössä ovat aulapalvelut, ravintola, kahvila ja catering-palvelut, jotka palvelevat niin arjen lounastarpeissa kuin asiakastilaisuuksissa. Lisäksi kiinteistössä on neuvotteluhuoneita, kuntosali, sauna sekä lainapyöriä työmatkaliikkumista varten. Sähköauton latauspisteet, siivous- ja kiinteistöpalvelut sekä vartiointi täydentävät kokonaisuuden.
Sijainti Tarvonsalmenkadulla tarjoaa erinomaiset liikenneyhteydet, sillä kiinteistö sijaitsee aivan Turunväylän läheisyydessä. Helppo saavutettavuus niin autolla kuin joukkoliikenteellä tekee tilasta käytännöllisen valinnan ja tukee sujuvaa arkea henkilöstölle ja vierailijoille.
Vapautuu
Heti
Rakennusvuosi
2013
Kerros
2 / 8
Energiatehokkuusluokka
Ei lain edellyttämää energiatodistusta
Näkyvällä paikalla
Ota yhteyttä
ScanReal Oy LKV
Opus Business Park
Hitsaajankatu 24
00810 Helsinki
info@scanreal.fi
Puh:
Näytä puhelinnumero
020 730 8830
Sopivat toimitilat yhdellä otolla!
Kartoitamme toimitilatarpeesi ja etsimme yrityksellesi parhaiten sopivat vapaat toimitilat. Koska vuokranantajat maksavat palvelumme, on tämä yrityksellesi veloituksetonta.
Palvelumme on tilanhakijalle ilmainen
Pyydä lisätietoa
