Vuokrataan toimistotilat - Espoo
Tarvonsalmenkatu 15, Perkkaa, 02600 Espoo #10853673
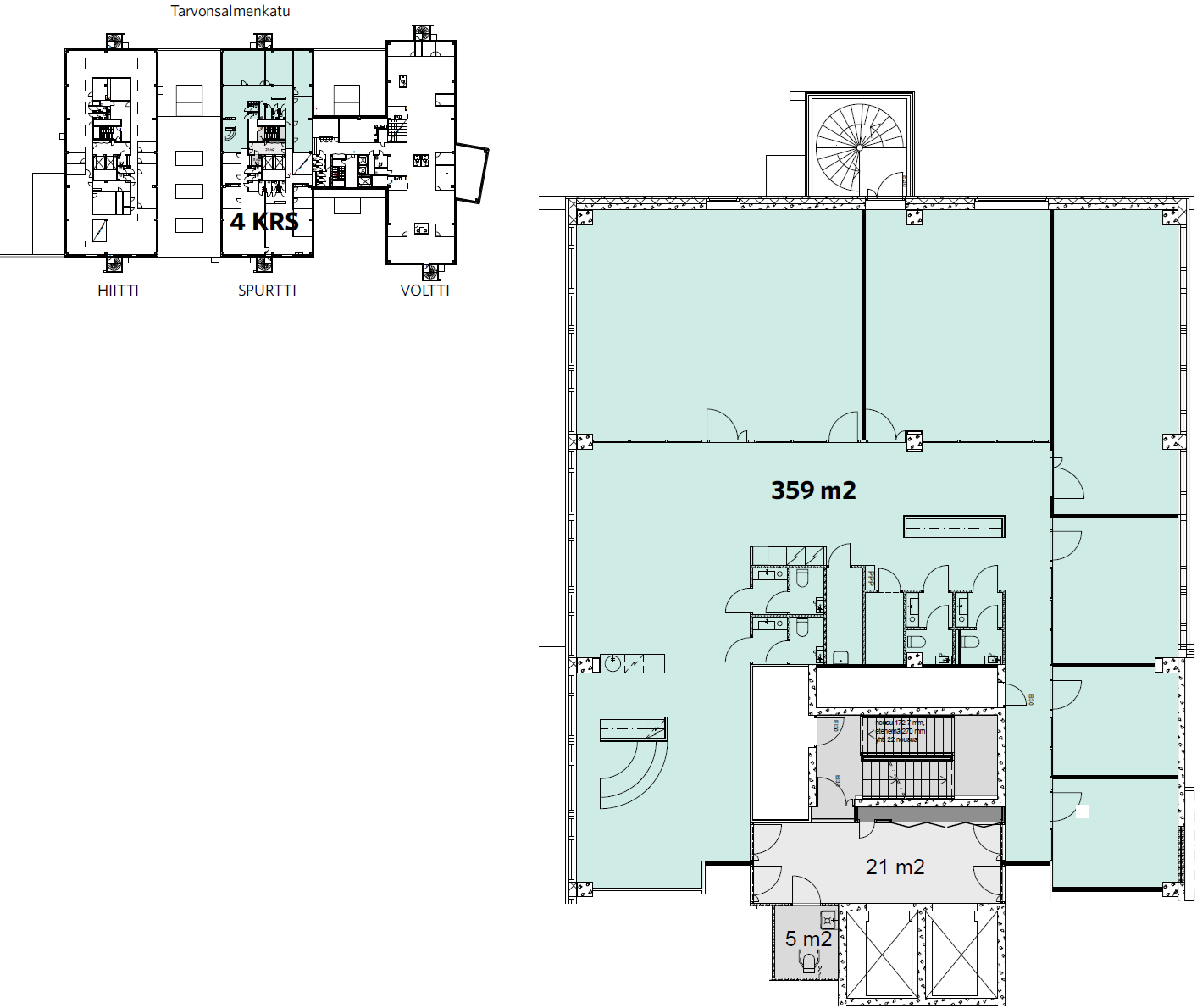
Moderni 359 m² toimistotila Derby Business Parkissa
Osoite
Tarvonsalmenkatu 15, 02600 Espoo
Tilatyyppi
Toimistotilaa
359 m2
Pohjapiirros
Kiinteistö
Moderni ja muuntojoustava 359 m²:n toimistotila kiinteistön neljännessä kerroksessa. Tila koostuu useista erillisistä huoneista, jotka soveltuvat erinomaisesti niin työhuoneiksi kuin koulutus- ja ryhmätiloiksi, ja joita täydentävät toimiva avotila. Kokonaisuuteen kuuluu oma keittiö, viihtyisä oleskelualue sekä wc-tilat, mikä tekee tilasta valmiin ja helppokäyttöisen arjen tarpeisiin. Tila on mahdollista laajentaa kattamaan koko kerros, mikä tarjoaa joustavan ratkaisun myös kasvaville organisaatioille.
Vuonna 2013 valmistunut kiinteistö edustaa nykyaikaista toimistorakentamista, jossa on huomioitu energiatehokkuus ja vastuullinen kiinteistönpito. Modernit tekniset ratkaisut tukevat tehokasta ja kestävää tilankäyttöä sekä luovat terveellisen ja miellyttävän työympäristön vuokralaisille.
Kiinteistön monipuoliset palvelut sujuvoittavat työpäivää ja lisäävät viihtyvyyttä. Aulapalvelut, ravintola, kahvila ja catering-palvelut palvelevat niin päivittäisessä käytössä kuin tilaisuuksien järjestämisessä. Käytettävissä ovat myös neuvotteluhuoneet, kuntosali, sauna sekä lainapyörät. Sähköauton latauspisteet, siivous- ja kiinteistöpalvelut sekä vartiointi täydentävät kokonaisuuden, jossa kaikki keskeiset palvelut löytyvät saman katon alta.
Kiinteistö sijaitsee erinomaisella paikalla aivan Turunväylän läheisyydessä, mikä takaa sujuvat liikenneyhteydet eri puolilta pääkaupunkiseutua. Helppo saavutettavuus niin autolla kuin joukkoliikenteellä tekee sijainnista käytännöllisen ja houkuttelevan, ja tukee tehokasta arkea niin henkilöstölle kuin vierailijoillekin.
Vuonna 2013 valmistunut kiinteistö edustaa nykyaikaista toimistorakentamista, jossa on huomioitu energiatehokkuus ja vastuullinen kiinteistönpito. Modernit tekniset ratkaisut tukevat tehokasta ja kestävää tilankäyttöä sekä luovat terveellisen ja miellyttävän työympäristön vuokralaisille.
Kiinteistön monipuoliset palvelut sujuvoittavat työpäivää ja lisäävät viihtyvyyttä. Aulapalvelut, ravintola, kahvila ja catering-palvelut palvelevat niin päivittäisessä käytössä kuin tilaisuuksien järjestämisessä. Käytettävissä ovat myös neuvotteluhuoneet, kuntosali, sauna sekä lainapyörät. Sähköauton latauspisteet, siivous- ja kiinteistöpalvelut sekä vartiointi täydentävät kokonaisuuden, jossa kaikki keskeiset palvelut löytyvät saman katon alta.
Kiinteistö sijaitsee erinomaisella paikalla aivan Turunväylän läheisyydessä, mikä takaa sujuvat liikenneyhteydet eri puolilta pääkaupunkiseutua. Helppo saavutettavuus niin autolla kuin joukkoliikenteellä tekee sijainnista käytännöllisen ja houkuttelevan, ja tukee tehokasta arkea niin henkilöstölle kuin vierailijoillekin.
Vapautuu
Heti
Rakennusvuosi
2013
Kerros
4 / 8
Energiatehokkuusluokka
Ei lain edellyttämää energiatodistusta
Näkyvällä paikalla
Ota yhteyttä
ScanReal Oy LKV
Opus Business Park
Hitsaajankatu 24
00810 Helsinki
info@scanreal.fi
Puh:
Näytä puhelinnumero
020 730 8830
Sopivat toimitilat yhdellä otolla!
Kartoitamme toimitilatarpeesi ja etsimme yrityksellesi parhaiten sopivat vapaat toimitilat. Koska vuokranantajat maksavat palvelumme, on tämä yrityksellesi veloituksetonta.
Palvelumme on tilanhakijalle ilmainen
Pyydä lisätietoa
