Vuokrataan toimistotilat - Tampere
Hatanpään Valtatie 18, Ratina, 33100 Tampere #10853659
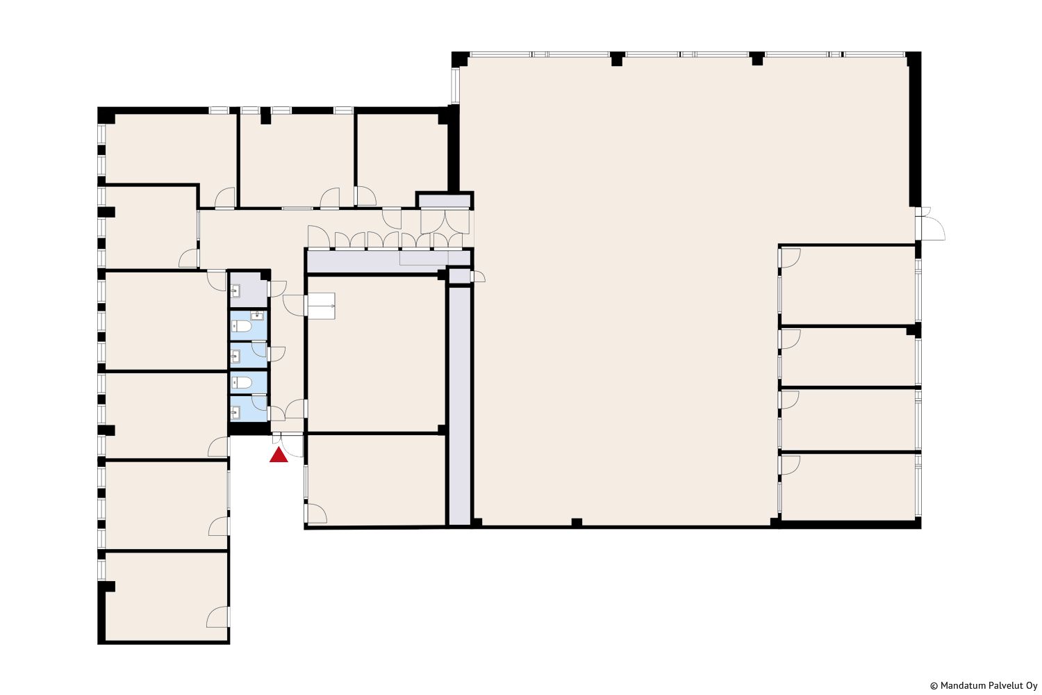
Vuokrataan siisti ja valoisa 495m² toimistotila kiinteistön ylimmästä eli 4. kerroksesta. Tilat koostuvat isosta avotilasta, jossa 4 kpl työhuoneita. Lisäksi toinen osio koostuu monista erikokoisista työ- ja neuvotteluhuoneista. Remontoidaan täysin vuokralaisen tarpeiden mukaan.
Talo tarjoaa vuokralaisten käyttöön ilmaiseksi 2 kpl neuvotteluhuoneita 1. kerroksesta, jotka varataan varausjärjestelmän kautta. Kiinteistöllä oma parkkihalli, josta mahdollisuus saada pysäköintioikeuksia. Kellarista mahdollista vuokrata varastotilaa!
Huom! Osa kuvista on showroomista/mallitoimistosta.
Kysy rohkeasti lisätietoja ja sovitaan käynti kohteella jo tänään!
Mandatum Palvelut Oy
Bulevardi 56, 00120 Helsinki
Näytä puhelinnumero
020 031 100
Mikko Ranta
Näytä puhelinnumero
050 360 6500
