Vuokrataan toimistotilat - Oulu
Elektroniikkatie 2B, Linnanmaa, 90590 Oulu #10853600
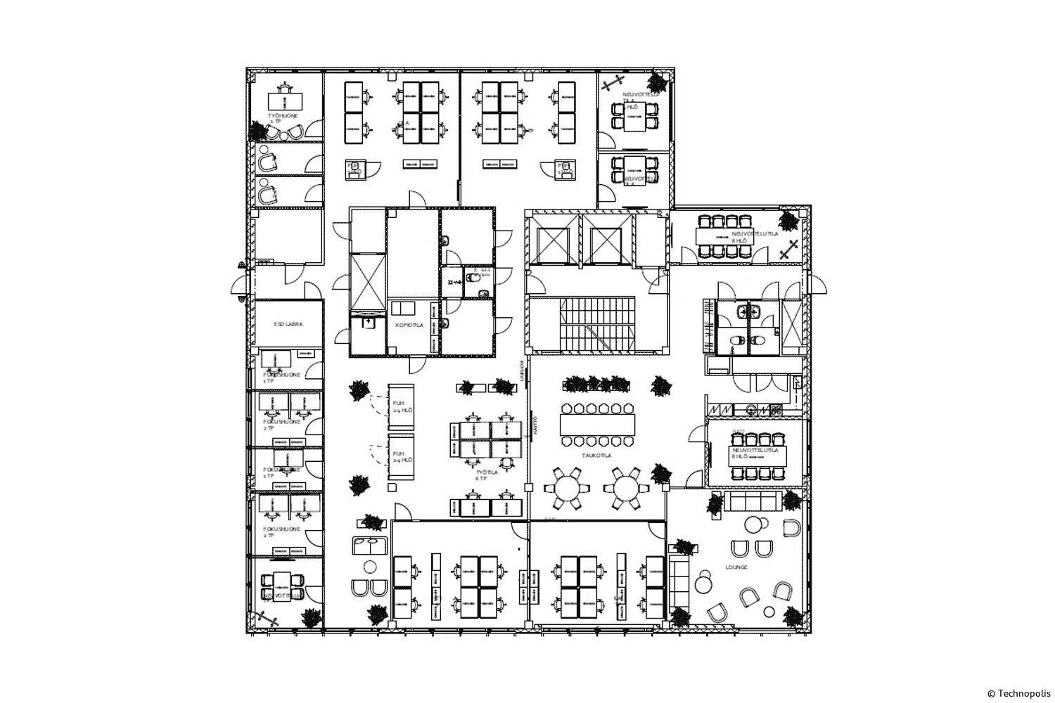
Vuokrattavana käytännöllinen ja moderni 696 m² toimitila 4. kerroksesta Technopolis Linnanmaalta. Tila on kuluvalvottu ja siihen kuuluu avotilaa, erikokoisia työ- ja neuvotteluhuoneita sekä wc- ja keittiötilat. Huonekohtainen jäähdytys takaa miellyttävän työskentelylämpötilan ympäri vuoden. Ilmoitettu neliömäärä sisältää jyvityksen kiinteistön yhteisistä tiloista.
Linnanmaan Kampus tarjoaa laajan valikoiman erilaisia palveluita helpottamaan asiakkaidensa arkea. Kiinteistön pääaulassa toimii vierailijoita opastava aulapalvelu. Kampuksella palvelevat Compass Groupin ja Sodexon lounasravintolat. Kampukselta löytyy myös monipuolinen valikoima erikseen vuokrattavia kokoustiloja eri tarpeisiin, muun muassa lounaskabinetteja, koulutustiloja, auditorio sekä yhteiskäyttöiset pukeutumis- ja suihkutilat.
Linnanmaan kampus sijaitsee lähellä Oulun yliopistoa, vain noin 10 minuutin ajomatkan päässä Oulun keskustasta. Kohteeseen on toimivat julkisiet kulkuyhteydet, ja aivan lähettyvillä sijaitsee kauppakeskus Oulun Ideapark. Rakennuksen pihalta löytyy edullisia pysäköintipaikkoja asiakkaille, ja pääsisäänkäynnin edessä on maksuttomia vieraspysäköintipaikkoja vieraiden käyttöön.
Technopolis
Elektroniikkatie 8 FIN-90590 Oulu
Näytä puhelinnumero
046 712 0000
Terhi Kestilä
Näytä puhelinnumero
040 719 9561
Myynti Technopolis Oulu
Technopolis on työympäristöjen asiantuntija. Tarjoamme joustavia ja tehokkaita toimitiloja sekä niihin liittyviä palveluita. Hoidamme kaiken työtilojen suunnittelusta sekä aula- ja kokouspalveluista ravintoloihin ja siivoukseen. Asiakaskokemus ja sen kehittäminen ovat toimintamme ytimessä. Meillä on 14 kampusta, joissa toimii 1200 asiakasyritystä ja niiden yli 30 000 työntekijää neljässä maassa Euroopassa.
https://technopolisglobal.com/fi