Vuokrataan toimistotilat - Helsinki
Sörnäisten rantatie 29, 00580 Helsinki #10853593
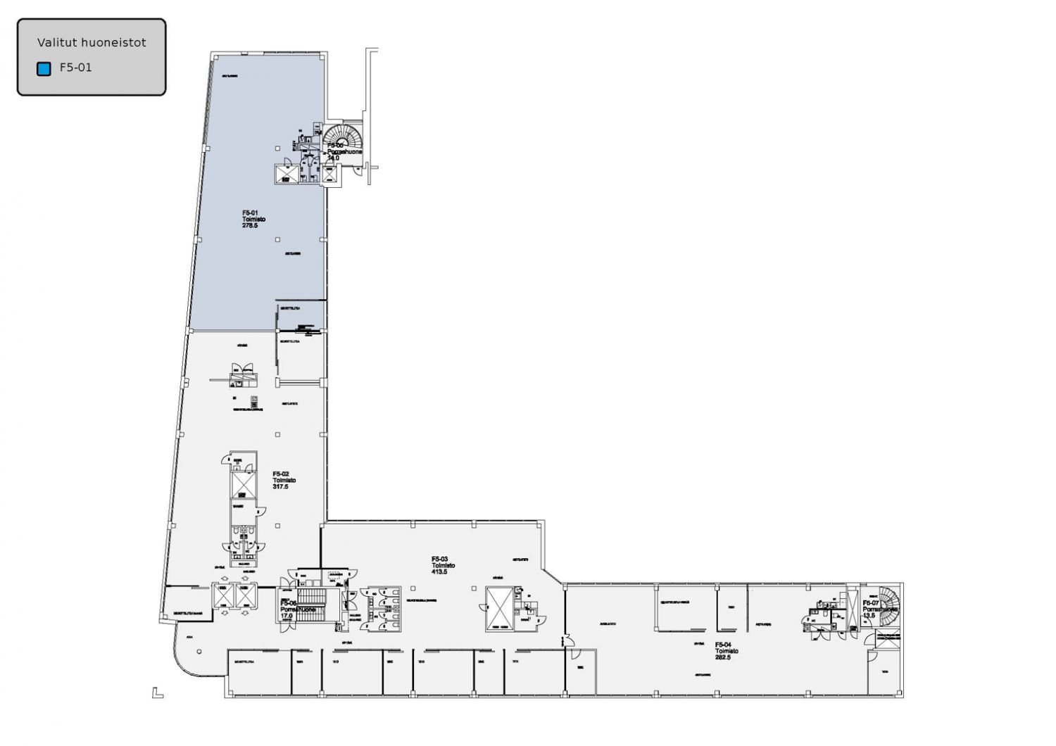
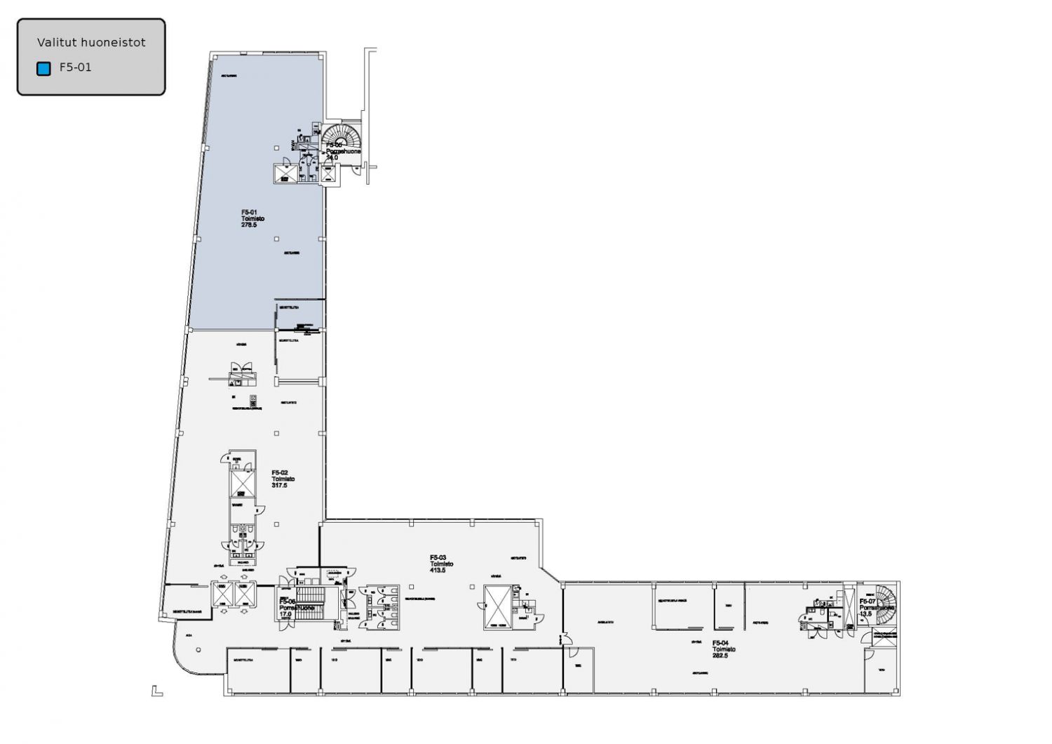
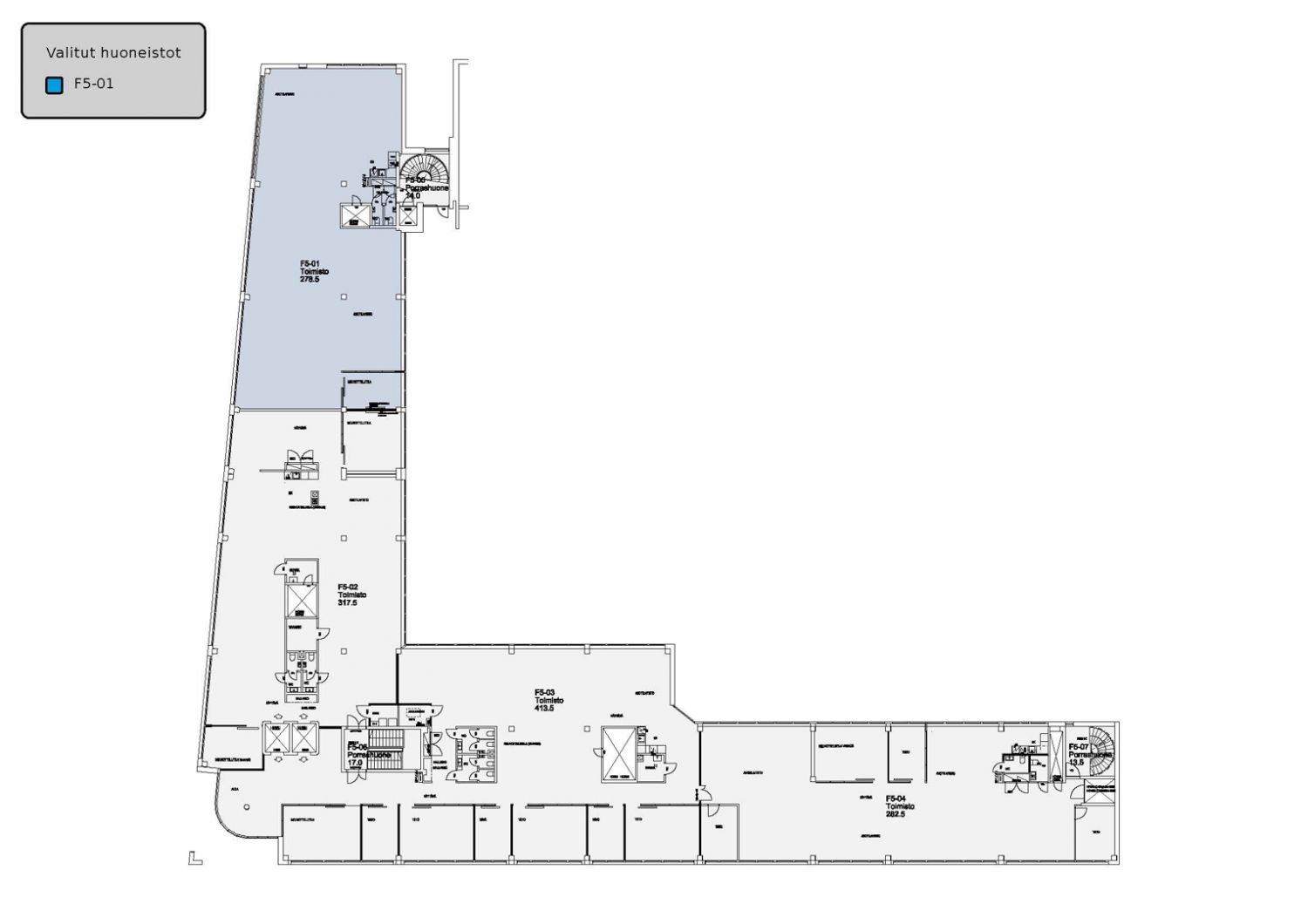
Vuokrattavana 5. kerroksen valoisa 278 m2 toimisto. Tilasta saa joustavan kokonaisuudeen monenlaisiin tarpeisiin.
Täysin uudistettu, merihenkinen, täyden palvelun Kalasataman Kummeli Business Park palvelee erilaisten asiakkaiden tarpeita joustavasti. Erinomainen sijainti Sörnäisten, Kalasataman ja Suvilahden keskiössä, metro ja REDI ovat kävelymatkan päässä. Kiinteistössä lounasravintola, aulapalvelu, autohalli (200 m2/yksi pysäköintioikeus).
Täyden palvelun business park Kalasataman Kummeli palvelee joustavasti erilaisten asiakkaiden tarpeita. Industrial-henkinen merellinen kiinteistö on remontoitu täysin vuonna 2015. Merkittävä kiinteistökokonaisuus Helsingin Sörnäisissä, Sörnäisten rantatien ja Vilhonvuorenkadun kulmassa. Katutasossa liiketilaa ja ylemmissä kerroksissa toimistotiloja. Yhdeksän vuokrattavaa neuvottelutilaa. Kiinteistössä myös korkeatasoinen lounasravintola. Talotekniikka, ilmanvaihto, jäähdytys ja IT-tekniikka on täysin uudistettu. Kaukokylmän avulla rakennus jäähtyy haluttuun lämpötilaan. Korkeatasoinen lounasravintola ja monipuoliset palvelut. Talossa on aulapalvelu ja isot hissit esteetöntä kulkua varten. Pyöräparkki, pukuhuoneet ja suihkut. Ylimmän kerroksen auditoriosta upea näköala yli Helsingin. Autohallista vuokrattavissa autopaikkoja. Vieraspysäköinti kadun toisella puolella.
