Vuokrataan työtilat - Lappeenranta
Alaniitynkatu 18-20, 53550 Lappeenranta #10853582
Vuokrattavana monikäyttöinen n. 131 m² hallitila Lappeenrannan Myllymäessä – Vapautuu 1.3.26
Tarjolla on tila, joka sopii moneen käyttöön: se sopii esim. varastoksi, tuotantotilaksi tai monipuoliseksi työtilaksi. Tila sijaitsee hyvien kulkuyhteyksien varrella Myllymäen suositulla teollisuusalueella.
Osoite
Alaniitynkatu 18-20, 53550 Lappeenranta
Tilatyyppi
Työtilaa
131 m2
Pysäköinti
Pihalla on runsaasti tilaa autoille ja kalustolle.
Muuta
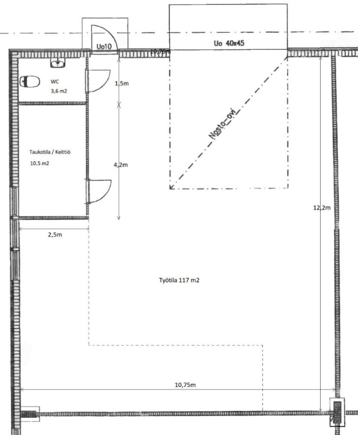
Tilan tiedot:
• Pinta-ala: 131 m² (sis. keittiö 10,5 m² ja WC 3,5 m²)
• Korkeus: Vapaa sisäkorkeus noin 5,5 metriä.
• Ovet: Käyntiovi sekä 4 x 4,5 m nosto-ovi.
• Vuokraan sisältyvät palvelut: lämpö, vesi ja paineilma
• Sähkö: Vuokralainen maksaa kuluttamansa sähkön itse.
Tila vapautuu 1.3.2026. Ota yhteyttä ja varaa näyttö hyvissä ajoin!
• Pinta-ala: 131 m² (sis. keittiö 10,5 m² ja WC 3,5 m²)
• Korkeus: Vapaa sisäkorkeus noin 5,5 metriä.
• Ovet: Käyntiovi sekä 4 x 4,5 m nosto-ovi.
• Vuokraan sisältyvät palvelut: lämpö, vesi ja paineilma
• Sähkö: Vuokralainen maksaa kuluttamansa sähkön itse.
Tila vapautuu 1.3.2026. Ota yhteyttä ja varaa näyttö hyvissä ajoin!
Vapautuu
1.3.2026
Ota yhteyttä
Kiinteistö Oy Alaniitynkatu 18-20
Pyydä lisätietoa