Vuokrataan toimistotilat - Espoo
Tarvonsalmenkatu 15, Perkkaa, 02600 Espoo #10853569
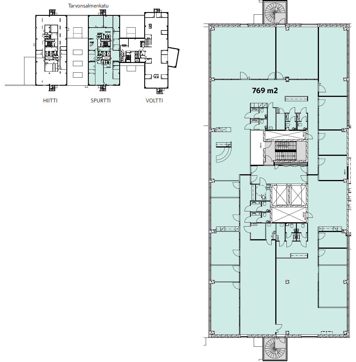
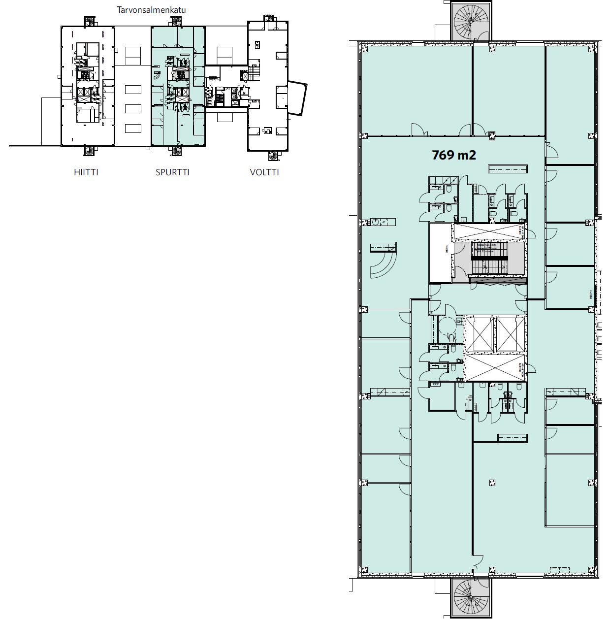
Muuntelukelpoinen koko kerroksen 769 m² toimistotila
Osoite
Tarvonsalmenkatu 15, 02600 Espoo
Tilatyyppi
Toimistotilaa
769 m2
Pohjapiirros
Kiinteistö
Edustava 769 m²:n toimistotila rakennuksen neljännessä kerroksessa. Koko kerroksen kattava tila tarjoaa upeat, avarat näkymät aina merelle saakka ja runsaasti luonnonvaloa. Neljä erillistä sisäänkäyntiä mahdollistavat tilan joustavan jakamisen eri tiimeille tai useammalle käyttäjälle. Pohjaratkaisultaan tila soveltuu erinomaisesti moderniin työskentelyyn, ja se on toteutettavissa sekä avotilana että erillisillä työ- ja neuvotteluhuoneilla. Tilaan on luontevaa sijoittaa myös oma keittiö- ja taukotila sekä useita wc-tiloja, mikä tukee sujuvaa arkea ja viihtyisää työympäristöä.
Vuonna 2013 valmistunut kiinteistö edustaa nykyaikaista toimistorakentamista, jossa on huomioitu energiatehokkuus ja vastuullinen kiinteistönpito. Modernit tekniset ratkaisut tukevat tehokasta tilankäyttöä ja luovat terveellisen sekä kestävän työympäristön yrityksille, jotka arvostavat laatua ja pitkäjänteisiä ratkaisuja.
Kiinteistön kattavat palvelut tekevät työpäivästä vaivatonta ja miellyttävää. Aulapalvelut, ravintola, kahvila ja catering-palvelut palvelevat niin arjessa kuin asiakastilaisuuksissa. Käytettävissä ovat myös yhteiset neuvottelutilat, kuntosali, sauna sekä lainapyörät. Sähköauton latauspisteet, siivous- ja kiinteistöpalvelut sekä vartiointi täydentävät kokonaisuuden, jossa kaikki tarpeellinen löytyy saman katon alta.
Sijainti Tarvonsalmenkadulla tarjoaa erinomaiset liikenneyhteydet erityisesti autoilijoille, sillä kiinteistö sijaitsee aivan Turunväylän tuntumassa. Tämä mahdollistaa sujuvan liikkumisen niin Helsingin keskustaan kuin kehäteiden suuntaan. Helposti saavutettava sijainti yhdistettynä laadukkaisiin tiloihin ja monipuolisiin palveluihin tekee tästä toimistosta houkuttelevan vaihtoehdon vaativallekin käyttäjälle.
Vuonna 2013 valmistunut kiinteistö edustaa nykyaikaista toimistorakentamista, jossa on huomioitu energiatehokkuus ja vastuullinen kiinteistönpito. Modernit tekniset ratkaisut tukevat tehokasta tilankäyttöä ja luovat terveellisen sekä kestävän työympäristön yrityksille, jotka arvostavat laatua ja pitkäjänteisiä ratkaisuja.
Kiinteistön kattavat palvelut tekevät työpäivästä vaivatonta ja miellyttävää. Aulapalvelut, ravintola, kahvila ja catering-palvelut palvelevat niin arjessa kuin asiakastilaisuuksissa. Käytettävissä ovat myös yhteiset neuvottelutilat, kuntosali, sauna sekä lainapyörät. Sähköauton latauspisteet, siivous- ja kiinteistöpalvelut sekä vartiointi täydentävät kokonaisuuden, jossa kaikki tarpeellinen löytyy saman katon alta.
Sijainti Tarvonsalmenkadulla tarjoaa erinomaiset liikenneyhteydet erityisesti autoilijoille, sillä kiinteistö sijaitsee aivan Turunväylän tuntumassa. Tämä mahdollistaa sujuvan liikkumisen niin Helsingin keskustaan kuin kehäteiden suuntaan. Helposti saavutettava sijainti yhdistettynä laadukkaisiin tiloihin ja monipuolisiin palveluihin tekee tästä toimistosta houkuttelevan vaihtoehdon vaativallekin käyttäjälle.
Vapautuu
Heti
Rakennusvuosi
2013
Kerros
4 / 8
Energiatehokkuusluokka
Ei lain edellyttämää energiatodistusta
Näkyvällä paikalla
Ota yhteyttä
ScanReal Oy LKV
Opus Business Park
Hitsaajankatu 24
00810 Helsinki
info@scanreal.fi
Puh:
Näytä puhelinnumero
020 730 8830
Sopivat toimitilat yhdellä otolla!
Kartoitamme toimitilatarpeesi ja etsimme yrityksellesi parhaiten sopivat vapaat toimitilat. Koska vuokranantajat maksavat palvelumme, on tämä yrityksellesi veloituksetonta.
Palvelumme on tilanhakijalle ilmainen
Pyydä lisätietoa
