Vuokrataan toimistotilat - Tampere
Kelloportinkatu 1, Tampella, 33100 Tampere #10853557
Osoite
Kelloportinkatu 1, Tampella, 33100 Tampere
Tilatyyppi
Toimistotilaa
1909 m2
Kiinteistö
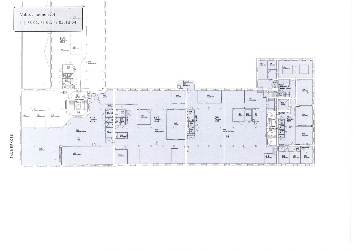
Tampereen Kelloportinkatu 1:stä vuokrattavana nykyaikainen 3. kerroksen toimistotila 1909 m². Osana tilaa on ainutlaatuinen kokouskeskus.
Tilakokonaisuus jaettavissa alkaen n. 500 m². Tampellan vanha pellavatehdas sijaitsee ydinkeskustassa, Tammerkosken rannalla. Kiinteistö täysin saneerattu v. 2017. Korkeatasoisen kohteen ominaisuuksia ovat mm. korkea huonekorkeus ja isot ikkunat. Kiinteistössä toimii ravintola Tampella sekä vuokralaisille tarjolla hyvät pukuhuonetilat.
Koskitammi on ainutlaatuinen pala tamperelaista teollisuushistoriaa. 1800-luvulla rakennetut tiiliseinät on herätetty henkiin nykyaikaisina toimistoina.
Kiinteistössä palvelee myös laadukas Ravintola Tampella. Kiinteistöstä löytyy myös yhteiset suihku- ja pukuhuonetilat.
Tila vapautuu 1.4.2026.
Tilakokonaisuus jaettavissa alkaen n. 500 m². Tampellan vanha pellavatehdas sijaitsee ydinkeskustassa, Tammerkosken rannalla. Kiinteistö täysin saneerattu v. 2017. Korkeatasoisen kohteen ominaisuuksia ovat mm. korkea huonekorkeus ja isot ikkunat. Kiinteistössä toimii ravintola Tampella sekä vuokralaisille tarjolla hyvät pukuhuonetilat.
Koskitammi on ainutlaatuinen pala tamperelaista teollisuushistoriaa. 1800-luvulla rakennetut tiiliseinät on herätetty henkiin nykyaikaisina toimistoina.
Kiinteistössä palvelee myös laadukas Ravintola Tampella. Kiinteistöstä löytyy myös yhteiset suihku- ja pukuhuonetilat.
Tila vapautuu 1.4.2026.
Sijainti
Sijainti Tampereen keskustassa on saavutettavuudeltaan erinomainen, kuljet sitten junalla, bussilla tai omalla autolla.
Vapautuu
Heti
Energiatehokkuusluokka
C
Ota yhteyttä
Comreal Oy LKV
Tuula Leikas
Näytä puhelinnumero
040 531 3722
Etu-Hankkion katu 18, 33700 Tampere
Comreal on valtakunnallinen, asiantunteva ja aktiivinen kiinteistöalan kumppani, joka palvelee sekä kiinteistönomistajia että toimitilojen käyttäjiä. Toimintamme ydin on yksinkertainen: tarjota erinomaista palvelua kaikille.
Pyydä lisätietoa
