Vuokrataan toimistotilat - Helsinki
Malmin kauppatie 8, Malmi, 00700 Helsinki #10853510
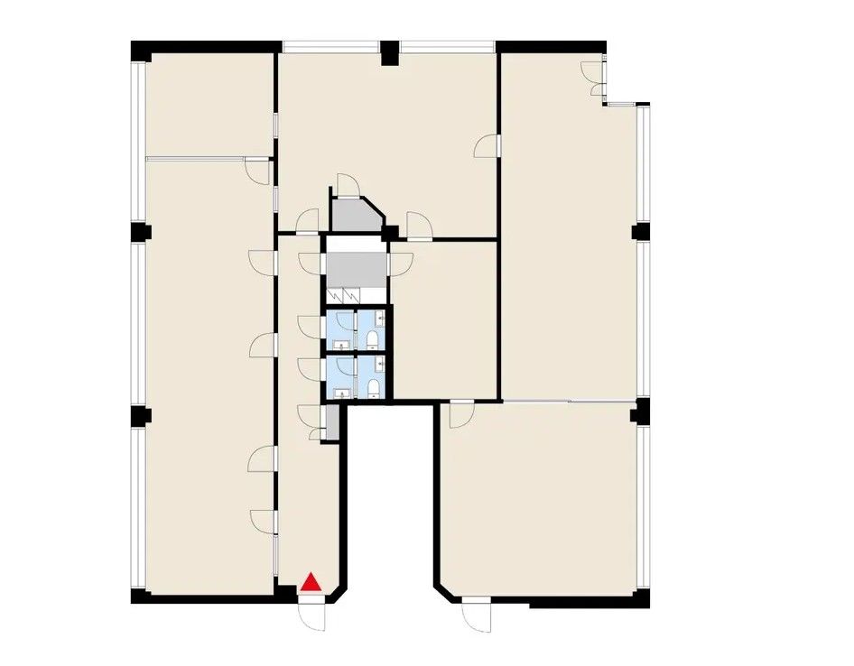
Vuokrattavana valoisa ja toimiva ensimmäisen kerroksen toimistotila Malmilta. Tila on esteetön, ja tarvittaessa on mahdollista rakentaa esteettömät WC-tilat. Malmille on erinomaiset kulkuyhteydet, olitpa liikkeellä julkisilla liikennevälineillä tai omalla autolla. Malmin kattavat palvelut sijaitsevat lähietäisyydellä, ja alueella liikkuminen on vaivatonta. Vuokralaisten käytössä on veloituksetta kiinteistön kuntosali, joka tuo mukavuutta ja joustavuutta työpäivän oheen.
Vuokraan lisätään alv + kulut
Kiinnostuitko? Tiesitkö, että tilan hakijalle palvelumme on maksuton?
Ota yhteyttä ja kysy lisää!
www.blanctoimitilat.fi
Harri Laisto, Kaupanvahvistaja, LKV, Yrittäjä
+358 40 536 5590
harri.laisto@blanckiinteisto.com
HUOM! Tilan hakijalle palvelumme on maksuton!

Blanc Toimitilat
Harri Laisto
Toimitila-asiantuntija, CEO, Kaupanvahvistaja, LKV
Näytä puhelinnumero
+358405365590