Vuokrataan toimistotilat - Espoo
Linnoitustie 4 B, Leppävaara, 02600 Espoo #10853503
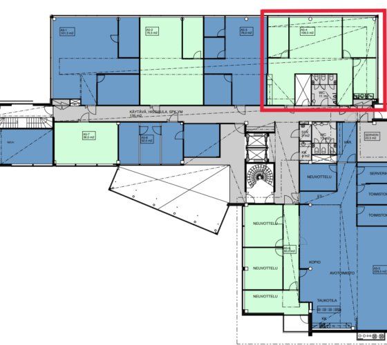
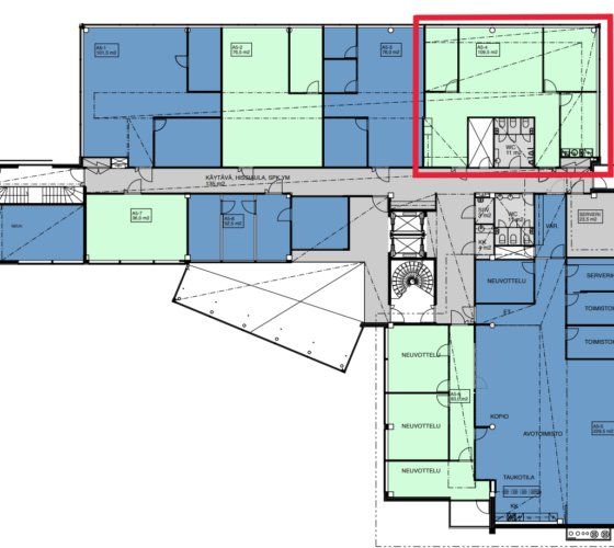
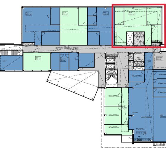
Kiinteistöstä löytyvät myös erilliset kokous- ja edustustilat, jotka mahdollistavat niin arjen sujuvuuden kuin juhlavat tilaisuudet.
Sijainti Kehä I:n varrella Etelä-Leppävaarassa takaa näkyvyyden ja hyvät kulkuyhteydet. Kauppakeskus Sellon monipuoliset palvelut sekä Leppävaaran juna-asema ovat vain kävelymatkan päässä. Lisäksi Raide-Jokerin pysäkki sijaitsee aivan kiinteistön edessä, mikä tekee liikkumisesta sujuvaa niin työntekijöille kuin asiakkaille.
Autoilijoita varten pysäköintitilaa löytyy runsaasti: autopaikkoja on sekä pysäköintitalossa että kiinteistön kellarissa, ja vieraspaikat sijaitsevat kätevästi suoraan pihalla.
Quartetto on tehokkuutta, näkyvyyttä ja mukavuutta saman katon alla. Ota yhteyttä ja kysy lisää vapaina olevista toimitiloista!
Vuokraan lisätään alv + kulut
Kiinnostuitko? Tiesitkö, että tilan hakijalle palvelumme on maksuton?
Ota yhteyttä ja kysy lisää!
www.blanctoimitilat.fi
Harri Laisto, Kaupanvahvistaja, LKV, Yrittäjä
+358 40 536 5590
harri.laisto@blanckiinteisto.com

Blanc Toimitilat
Harri Laisto
Toimitila-asiantuntija, CEO, Kaupanvahvistaja, LKV
Näytä puhelinnumero
+358405365590