Vuokrataan toimistotilat - Helsinki
Sentnerikuja 1, Lassila, 00440 Helsinki #10853497
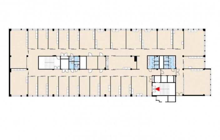
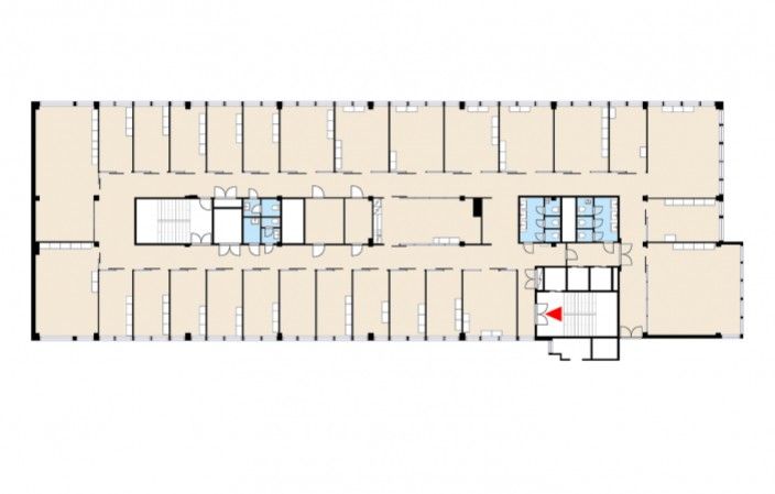
Tarjolla muunneltava ja yksilöllisiin tarpeisiin mukautuva toimistohuoneisto Helsingin Lassilassa. Ylimmän kerroksen tilaa voidaan tarvittaessa yhdistää myös alemman kerroksen kanssa. Kahden kerroksen kokonaisuus kattaa noin 2500 m², ja tilaan voidaan toteuttaa työpisteet jopa 160 henkilölle.
Kiinteistön pihalla on 70 pysäköintipaikkaa, ja vieressä sijaitsevasta pysäköintitalosta on vuokrattavissa lisää paikkoja. Kadunvarsipaikat, joilla voi pysäköidä 2–4 tuntia, soveltuvat hyvin vierailijoille.
Vuokraan lisätään alv + kulut
Kiinnostuitko? Tiesitkö, että tilan hakijalle palvelumme on maksuton?
Ota yhteyttä ja kysy lisää!
www.blanctoimitilat.fi
Harri Laisto, Kaupanvahvistaja, LKV, Yrittäjä
+358 40 536 5590
harri.laisto@blanckiinteisto.com

Blanc Toimitilat
Harri Laisto
Toimitila-asiantuntija, CEO, Kaupanvahvistaja, LKV
Näytä puhelinnumero
+358405365590