Vuokrataan toimistotilat - Helsinki
Itälahdenkatu 23, Lauttasaari, 00210 Helsinki #10853475
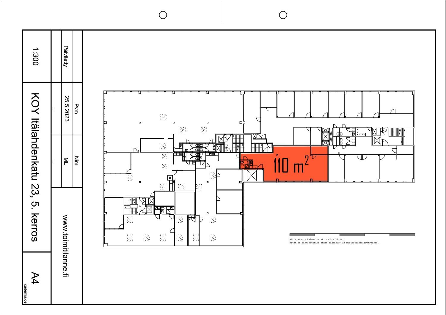
Vuokrataan remontoitu ylimmän kerroksen 110 m² toimitila: tilava avotoimisto, varastohuone, keittiö ja suihkullinen wc. Tila sopii toimistoksi ja näyttelytilaksi. Toimistossa on ilmalämpöpumppu viilennystä varten. Käytössä henkilöhissi.
Kysy rohkeasti lisätietoja ja sovitaan käynti kohteella!
Osoite
Itälahdenkatu 23, 00210 Helsinki
Tilatyyppi
Toimistotilaa
110 m2
Kiinteistö
Itälahdenkatu 23
Palvelut
Lastauslaituri ja tavarahissi.
Vapautuu
Kysy
Kerros
5
Hissi
Ota yhteyttä
Hausala Oy
Erkkilänkatu 11, 33100 Tampere
Näytä puhelinnumero
050 472 7077
Mikko Ranta
Näytä puhelinnumero
050 360 6500
Mika Savikko
Näytä puhelinnumero
050 472 7077
Pyydä lisätietoa
