Vuokrataan toimistotilat - Espoo
Kutojantie 7, Nihtisilta, 02630 Espoo #10853433
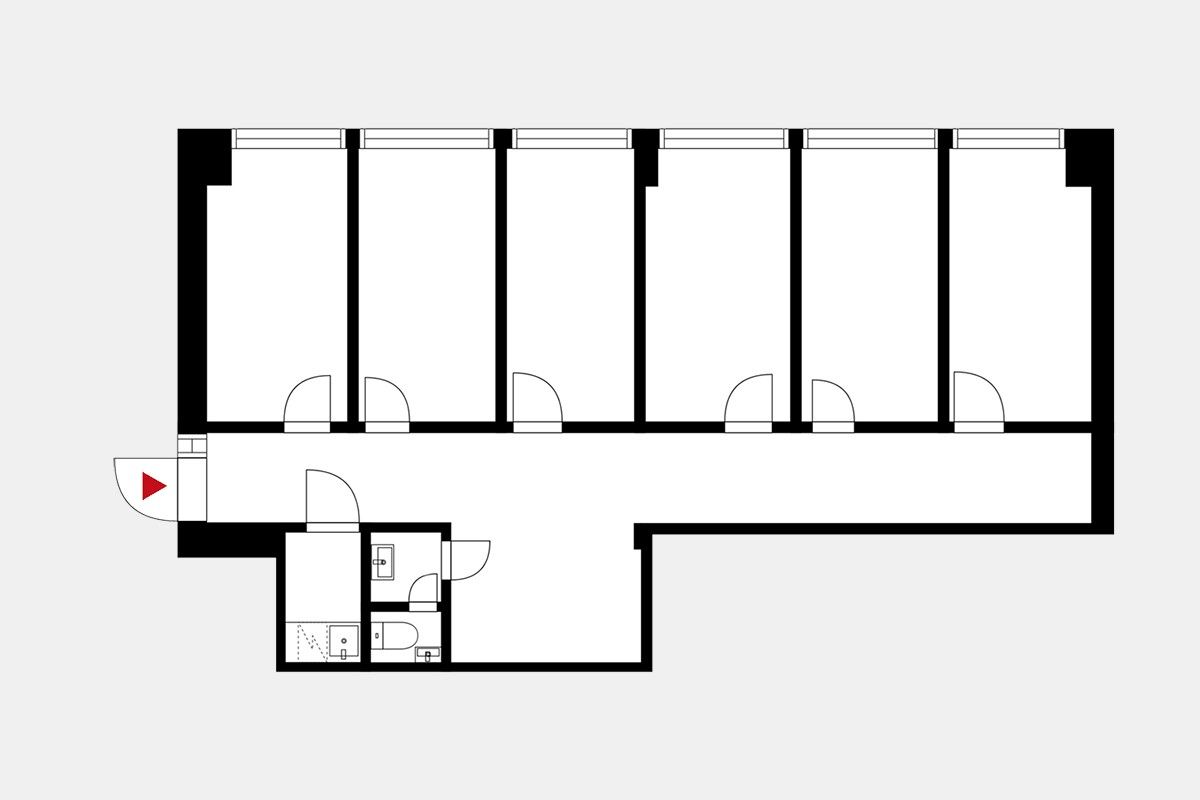
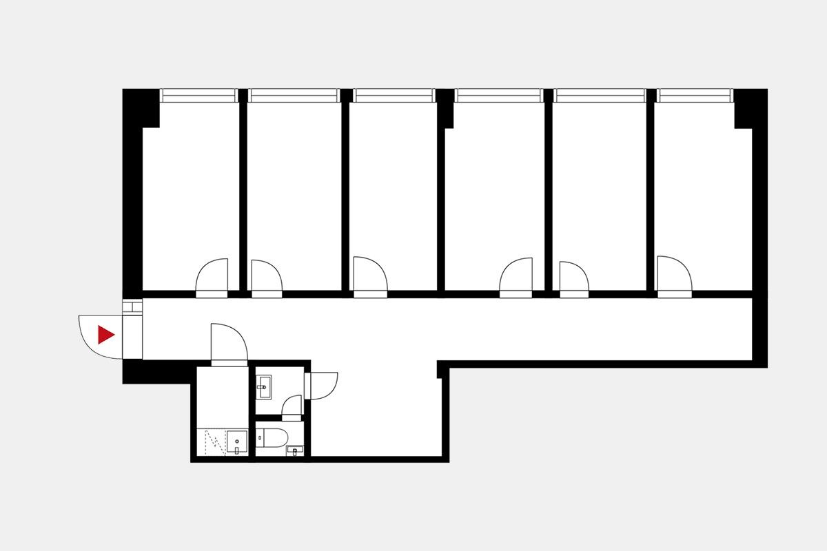
Vuokrattavana siisti neljännen kerroksen toimistotila Espoon Kutojantiellä. Tavarahissi ja kellarikerroksen pienvarastot ovat käytettävissä, ja ylimmässä kerroksessa voi vuokrata saunaosaston neuvottelutiloineen. Sijainti tarjoaa erinomaiset kulkuyhteydet, ja Keran asema on vain 500 metrin päässä. Lämmityspistokkeellisia pysäköintipaikkoja on tarjolla hallissa ja pihalla, vieraspaikat pääsisäänkäynnin edessä.
Ota yhteyttä ja tule tutustumaan!
www.blanctoimitilat.fi
Harri Laisto, Kaupanvahvistaja, LKV, Yrittäjä
+358 40 536 5590
harri.laisto@blanckiinteisto.com
HUOM! Tilanhakijalle palvelumme on maksuton!

Blanc Toimitilat
Harri Laisto
Toimitila-asiantuntija, CEO, Kaupanvahvistaja, LKV
Näytä puhelinnumero
+358405365590