Vuokrataan toimistotilat - Espoo
Sinimäentie 8b, Sinimäki, 02360 Espoo #10853432
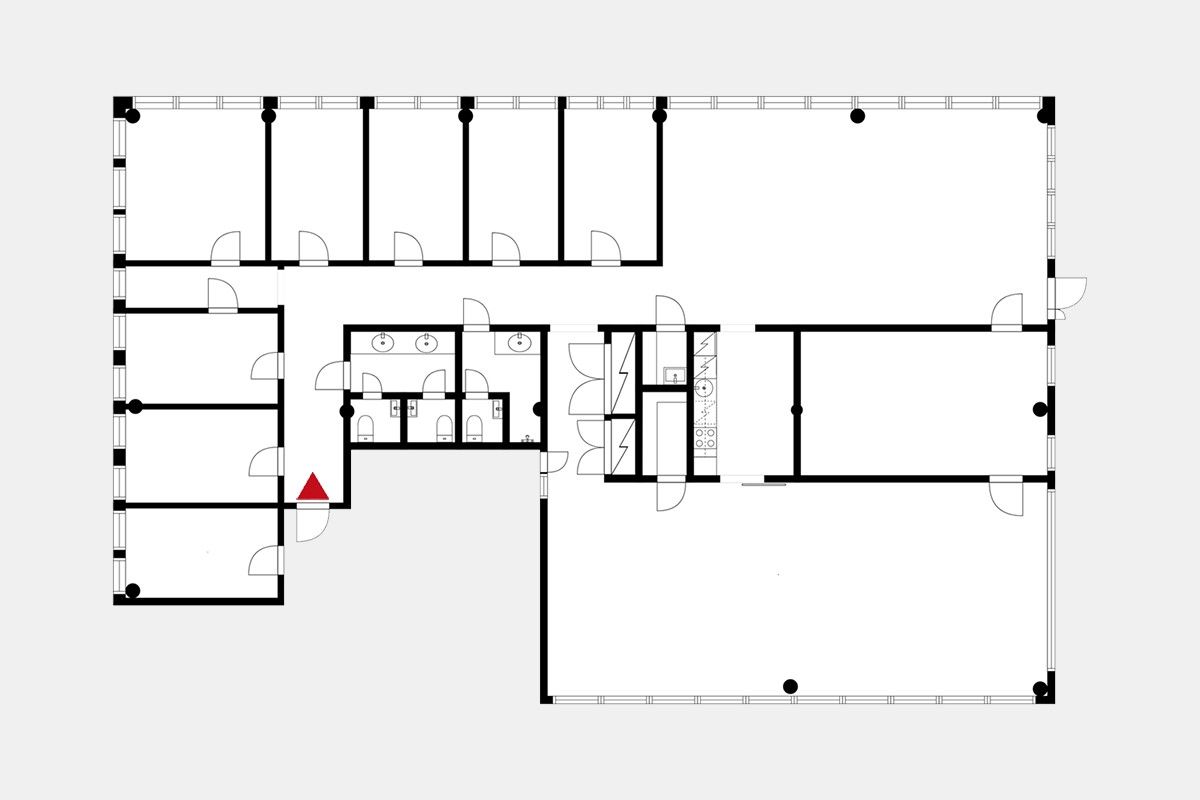
Business Park Sinihelmessä Espoon Sinimäessä on vuokrattavana 4. kerroksen toimitila, joka yhdistää avotilan ja toimistohuoneet. Tilassa on omat wc-tilat ja keittiö. Kohde sijaitsee lähellä Kehä I ja Turuntietä, joten saavutettavuus on vaivatonta. Lähialueelta löytyy runsaasti kauppoja ja palveluita, ja kiinteistössä on tämän lisäksi oma lounasravintola. Lämmitys toimii ekologisesti maalämmöllä. Piha-alueella on runsaasti vuokrattavia pysäköintipaikkoja, vieraspaikkoja sekä sähköauton latauspaikkoja.
Ota yhteyttä ja tule tutustumaan!
www.blanctoimitilat.fi
Joonas Nuutinen, toimitila-asiantuntija
+358 40 754 5408
joonas.nuutinen@blanckiinteisto.com
HUOM! Tilanhakijalle palvelumme on maksuton!

Blanc Toimitilat
Harri Laisto
Toimitila-asiantuntija, CEO, Kaupanvahvistaja, LKV
Näytä puhelinnumero
+358405365590