Vuokrataan toimistotilat - Helsinki
Alvar Aallon katu 3, 00100 Helsinki #10853341
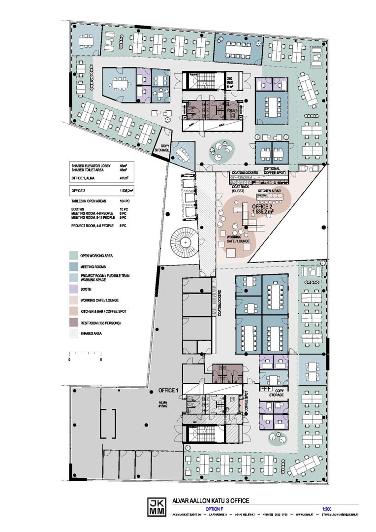
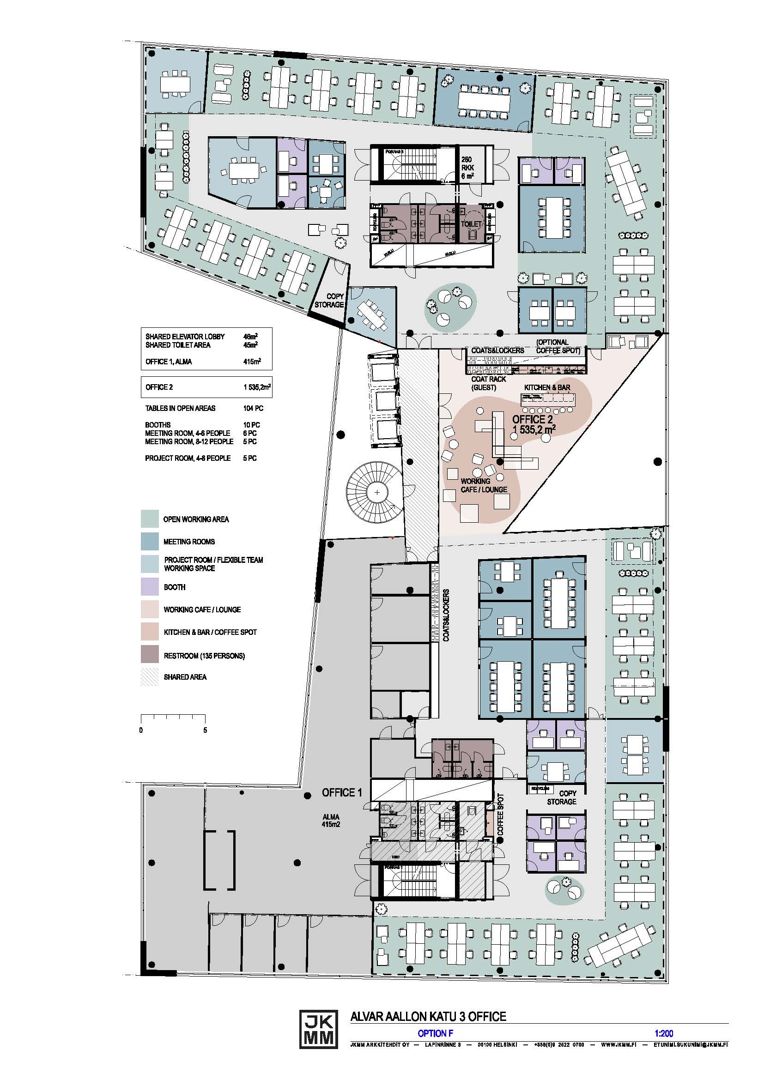
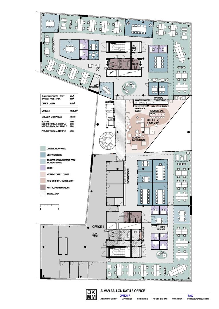
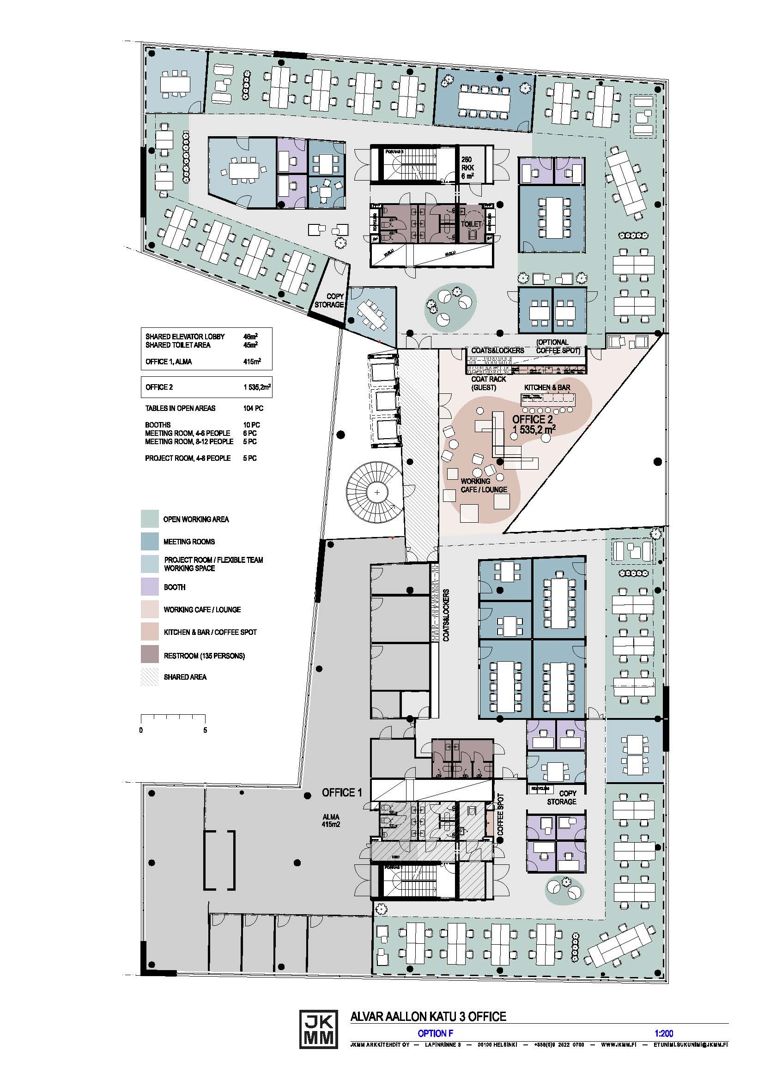
Vuokrattavana pääkonttoritasoista ja tilavaa toimistotilaa Helsingin sydämmestä. Tämä 1500m2 tila on täydellinen ratkaisu yrityksellesi, joka arvostaa keskeistä sijaintia ja korkealaatuisia puitteita. Tilasta on upeat näkymät Töölönlahdelle ja Kaisaniemenlahdelle, ja suuret lattiasta kattoon ulottuvat ikkunat lisäävät tilan valoisuutta. Aulapalvelu, useita neuvottelutiloja, pysäköintihalli ja premium-tason ravintola. Työpisteitä tilaan saadaan mukavasti mahtumaan n. 60-80 kpl ja tilat ovat joustavasti muokattavissa tarpeenne mukaan. Sijainti ja saavutettavuus ensiluokkaista tilan sijaitessa julkisten kulkuvälineiden solmukohdassa. Tila on jaettavissa myös 600m2 ja 900m2 osiin.
Joulukuussa 2012 valmistunut toimistorakennus, joka on Alma Median ja Ahlstrom Oyj:n käytössä. Toimistotalo sijaitsee Töölönlahdella Finlandia-talon ja ratapihan välissä. Tilaa on viidessä kerroksessa kaikkiaan noin 10 000 neliön verran. Talon on suunnitellut Arkkitehtitoimisto JKMM Oy ja rakentanut Lemminkäinen Oyj. Kiinteistölle on myönnetty ympäristösertifikaatti: LEED New Construction, luokka Gold.
