Vuokrataan liiketilat, varastotilat - Helsinki
Linnankoskenkatu 4, Töölö, 00250 Helsinki #10853272
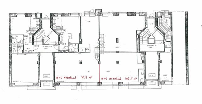
Liiketila, jossa isot ikkunat vehreälle kadulle. Kokonaisneliöt 131,5 josta katutason liiketilaa 75,5 ja kellarikerroksessa n. 56 m2 varastotilaa. Tila ei sovellu ravintola tai kahvilatoimintaan.
Linnankoskenkatu 4 sijaitsee Taka Töölössä, kantakaupungin runsaiden palveluiden läheisyydessä. Linnakosken puisto sekä Töölön monipuoliset mahdollisuudet ovat kävelymatkan päässä. Hyvät julkiset liikenneyhteydet mm. Mannerheimintiellä, jossa kulkevat lukuisat bussi- ja raitiovaunulinjat.
Lisätiedot 020 7290 710 ja lisää toimitilakohteita premises.fi
Kohteella ei ole lain edellyttämää energiatodistusta tai energialuokka ei tiedossa.Kerros: 1
CRE PREMISES
Puh. Näytä puhelinnumero 020 7290 710
Vantaankoskentie 14
01670 VANTAA
