Vuokrataan - Nurmijärvi
Metsämiehenkuja 1, Nurmijärvi, 01900 Nurmijärvi #10853262
Osoite
Metsämiehenkuja 1, 01900 Nurmijärvi
Muuta
VUOKRATAAN HALLITILAA NURMIJÄRVELTÄ!
Vapaa heti!
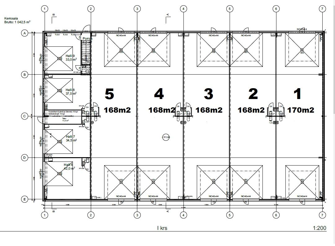
Nurmijärvellä metsämiehenkujalla hyvien kulkuyhteyksien varrella vuokrattavana hallitila.
Hallin vapaa korkeus noin 6 metriä.
Tilat ovat asfaltoidulla ja aidatulla tontilla.
Hallien varustelu mm: wc, maalämpö, internet-yhteys, kylmä ja lämmin vesi, valaistus, moottoroidut nosto-ovet, öljyn-ja hiekanerotuskaivot, kameravalvonta, masterpop-pinnoitettu lattia, voimavirta.
Sopiii monenlaiseen käyttöön.
Kysy Lisää!
Sampo Ylikulju
040 354 1771
sampo.ylikulju@kiinteistotahkola.fi
Vapaa heti!
Nurmijärvellä metsämiehenkujalla hyvien kulkuyhteyksien varrella vuokrattavana hallitila.
Hallin vapaa korkeus noin 6 metriä.
Tilat ovat asfaltoidulla ja aidatulla tontilla.
Hallien varustelu mm: wc, maalämpö, internet-yhteys, kylmä ja lämmin vesi, valaistus, moottoroidut nosto-ovet, öljyn-ja hiekanerotuskaivot, kameravalvonta, masterpop-pinnoitettu lattia, voimavirta.
Sopiii monenlaiseen käyttöön.
Kysy Lisää!
Sampo Ylikulju
040 354 1771
sampo.ylikulju@kiinteistotahkola.fi
Vapautuu
Heti vapaa
Rakennusvuosi
2022
Kerros
1
Ota yhteyttä
Kiinteistö-Tahkola Oy
Itälahdenkatu 15-17, 2krs, 00210 Helsinki
Näytä puhelinnumero
0207 480 294
Sampo Ylikulju
Näytä puhelinnumero
040 354 1771
Pyydä lisätietoa
