Vuokrataan toimistotilat - Helsinki
Nuijamiestentie 5, Haaga, 00400 Helsinki #10853224
Siisti, muuttovalmis avotoimistotila, joka on uudistettu 2019.
Avara toimisto, jossa on suuret ikkunat kolmeen suuntaan.
Tila soveltuu myös kevyeen tuotantoon.
Osoite
Nuijamiestentie 5, 00400 Helsinki
Tilatyyppi
Toimistotilaa
180 m2
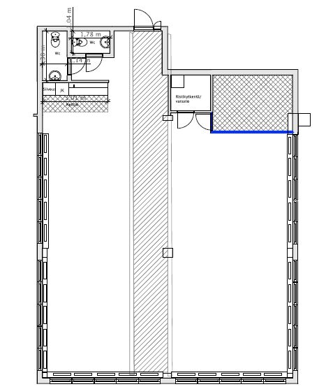
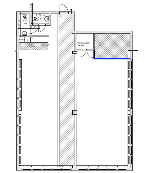
Pohjapiirros
Pysäköinti
Kiinteistön alueella on runsaasti vuokrattavia pysäköintipaikkoja, joista osassa on sähköauton latausmahdollisuus. Maksuton asiakaspysäköinti sijaitsee sisäänkäynnin edessä. Lisäksi maksuttomia pysäköintipaikkoja on kadun varressa.
Kulkuyhteydet
Paikalle on helppo tulla omalla autolla Hämeenlinnan väylän kautta Metsälän liittymästä.
Lähin bussipysäkki sijaitsee sisäänkäynnin edessä. Raidejokerin pysäkillekin on vain parin minuutin kävelymatka.
Lähin bussipysäkki sijaitsee sisäänkäynnin edessä. Raidejokerin pysäkillekin on vain parin minuutin kävelymatka.
Muuta
Siisti, muuttovalmis avotoimistotila, joka on uudistettu 2019.
Avara toimisto, jossa on koko seinän pituiset ikkunat kolmeen suuntaan.
Toimistotilasta on erotettu lasiseinällä erillinen neuvotteluhuone.
Tilassa on keittiö ja kaksi WC:tä.
Tila soveltuu myös kevyeen tuotantoon.
Avara toimisto, jossa on koko seinän pituiset ikkunat kolmeen suuntaan.
Toimistotilasta on erotettu lasiseinällä erillinen neuvotteluhuone.
Tilassa on keittiö ja kaksi WC:tä.
Tila soveltuu myös kevyeen tuotantoon.
Vapautuu
Heti
Kerros
2 / 4
Hissi
Ota yhteyttä
Pyydä lisätietoa
