Vuokrataan toimistotilat - Tampere
Kanslerinrinne 1, Keskusta, 33100 Tampere #10853200
Harvinainen toimistokokonaisuus Tampereen ytimestä
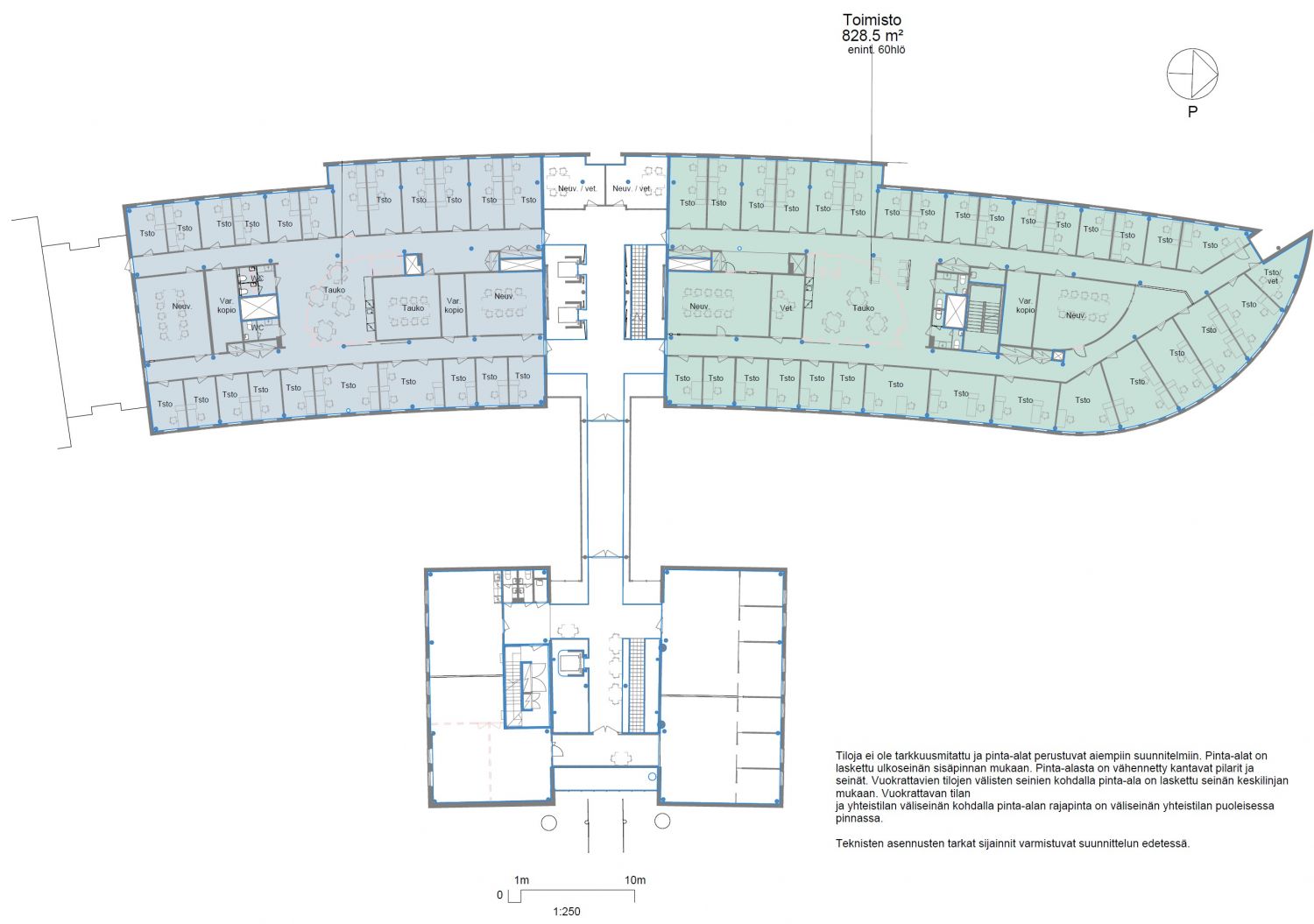
Nyt on tarjolla poikkeuksellinen toimistokokonaisuus aivan Tampereen ydinkeskustassa, Pinni A -rakennuksessa osoitteessa Kanslerinrinne 1. Viidennessä kerroksessa sijaitseva noin 828 m²:n tila on viimeinen vapaa kokonaisuus Pinni A:ssa ja tarjoaa mahdollisuuden sijoittua aivan Tampereen ytimeen. Näin laajaa toimistotilaa aivan kaupungin ytimessä on harvoin tarjolla, ja juuri siksi tämä kohde erottuu edukseen.
Keskustan parhaalla sijainnilla ilman keskustan hintaa
Toimitila sijaitsee aivan Nokia Arenan ja yliopiston vieressä, erinomaisilla kulkuyhteyksillä. Ratikka ja rautatieasema ovat noin 500 metrin kävelymatkan päässä. Myös keskustan ravintolat, kahvilat ja palvelut ovat helposti saavutettavissa. Sijainti tukee sujuvaa työarkea ja tekee toimistolle saapumisesta helppoa niin henkilöstölle kuin asiakkaille. Vuokrataso on selvästi edullisempi kuin vastaavissa keskustan kohteissa, mikä tekee tästä kohteesta poikkeuksellisen houkuttelevan.
Tila, joka mukautuu yrityksesi mukaan
Tila on tällä hetkellä perussiistiä toimistotilaa ja soveltuu suoraan käyttöön, mikäli perinteinen koppikonttori palvelee yrityksesi toimintaa. Samalla kokonaisuus tarjoaa erinomaiset mahdollisuudet muokata tilat juuri omiin tarpeisiin sopiviksi. Iso kokonaisuus tai pienempi ratkaisu on molemmat mahdollisia. Täällä et maksa aulapalveluista tai ylimääräisistä kuluista, vaan käytössä olevasta tilasta. Tämä on tila, joka antaa yrityksellesi tilaa kasvaa, toimia ja erottua.
