Vuokrataan toimistotilat - Helsinki
Kaisaniemenkatu 6, Keskusta, 00100 Helsinki #10853192
Siisti 317,5 m² avotoimisto hyvien julkisen liikenteen yhteyksien varrella suositulla paikalla Kaisaniemessä.
Osoite
Kaisaniemenkatu 6, 00100 Helsinki
Tilatyyppi
Toimistotilaa
317,5 m2
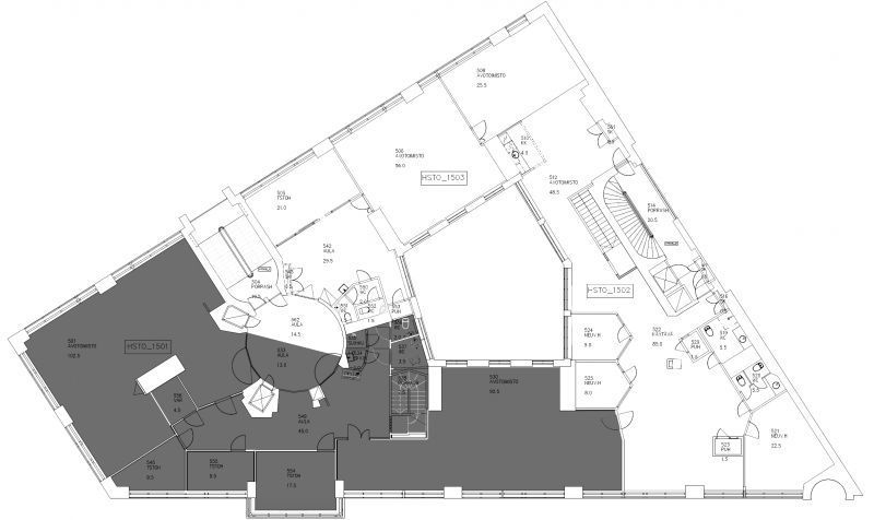
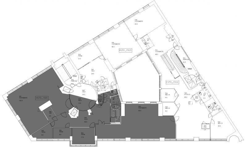
Pohjapiirros
Kiinteistö
Moderni avotilasta ja muutamasta huoneesta koostuva toimisto.
Oiva Kallion suunnittelema ja vuonna 1930 valmistunut rakennus Kluuvissa Kaisaniemenkadun ja Vuorimiehenkadun kulmauksessa. Rakennus on näkyvällä paikalla Hakaniemeen johtavan tien varrella erinomaisten julkisten liikenneyhteksien varrella.
Oiva Kallion suunnittelema ja vuonna 1930 valmistunut rakennus Kluuvissa Kaisaniemenkadun ja Vuorimiehenkadun kulmauksessa. Rakennus on näkyvällä paikalla Hakaniemeen johtavan tien varrella erinomaisten julkisten liikenneyhteksien varrella.
Sijainti
Keskusta
Pysäköinti
Keskustan pysäköintilaitokset
Palvelut
Keskustan palvelut
Kulkuyhteydet
Metroasema alle 100 m, Raitiovaunupysäkki 100 m, Bussipysäkki 200 m, Juna-asema 400 m, Lentoasema 19,4 km
Kiinteistö sijaitsee lähellä Kaisaniemen metroasemaa. Rautatietorille ja Elielin aukiolle on lyhyt kävelymatka. Raitiovaunut sekä bussit liikennöivät Kaisaniemenkatua pitkin.
Kiinteistö sijaitsee lähellä Kaisaniemen metroasemaa. Rautatietorille ja Elielin aukiolle on lyhyt kävelymatka. Raitiovaunut sekä bussit liikennöivät Kaisaniemenkatua pitkin.
Vapautuu
Heti
Kerros
5 / 8
Energiatehokkuusluokka
F
Näkyvällä paikalla
Hissi
Ota yhteyttä
ScanReal Oy LKV
Opus Business Park
Hitsaajankatu 24
00810 Helsinki
info@scanreal.fi
Puh:
Näytä puhelinnumero
020 730 8830
Sopivat toimitilat yhdellä otolla!
Kartoitamme toimitilatarpeesi ja etsimme yrityksellesi parhaiten sopivat vapaat toimitilat. Koska vuokranantajat maksavat palvelumme, on tämä yrityksellesi veloituksetonta.
OTA YHTEYTTÄ - SOVI NÄYTTÖ!
Kaikki kohteemme eivät ole netissä, kerro tilatarpeesi niin kartoitamme vaihtoehdot.
Palvelumme on tilanhakijalle ilmainen
Pyydä lisätietoa
