Vuokrataan toimistotilat, liiketilat - Helsinki
Annankatu 27, Kamppi, 00100 Helsinki #10853189
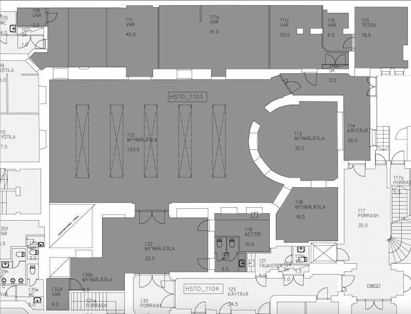
Talon atriumpihalla sijaitseva 423,5 m² liiketila, johon oma sisäänkäynti kadulta.
Osoite
Annankatu 27, 00100 Helsinki
Tilatyyppi
Toimistotilaa
423,5 m2
Liiketilaa
423,5 m2
Yhteensä
423,5 m2
Pohjapiirros
Kiinteistö
Talon atriumpihalla sijaitseva toimisto- tai liiketila, johon oma sisäänkäynti kadulta. Tilassa on vain kattoikkunat tilan keskiosassa.
Annankatu 27 sijaitsee näkyvällä paikalla, kävelymatkan päässä Kampin kauppakeskuksesta.
Julkisen liikenteen yhteydet ovat erinomaiset, tänne on helppo tulla. Lisäksi lähettyviltä löytyvät kaikki keskustan palvelut lounasravintoloineen ja kauppoineen.
Tila ei sovellu ravintolaksi.
Annankatu 27 sijaitsee näkyvällä paikalla, kävelymatkan päässä Kampin kauppakeskuksesta.
Julkisen liikenteen yhteydet ovat erinomaiset, tänne on helppo tulla. Lisäksi lähettyviltä löytyvät kaikki keskustan palvelut lounasravintoloineen ja kauppoineen.
Tila ei sovellu ravintolaksi.
Sijainti
Sijaitsee Annankadun ja Eerikinkadun kulmassa.
Sisäänkäynti Eerikinkatu 3:sta.
Sisäänkäynti Eerikinkatu 3:sta.
Pysäköinti
Useita pysäköintilaitoksia kohtuullisen matkan päässä.
Palvelut
Mm. Kampin keskus lyhyen matkan päässä.
Kulkuyhteydet
Hyvällä paikalla Kampissa, lähellä metro- ja bussiasemaa. Metroasema 400 m, Raitiovaunupysäkki 200 m, Bussipysäkki 200 m, Juna-asema 500 m, Lentoasema 20,4 km
Vapautuu
Heti
Kerros
1
Energiatehokkuusluokka
Ei lain edellyttämää energiatodistusta
Katutasossa
Näkyvällä paikalla
Hissi
Ota yhteyttä
ScanReal Oy LKV
Opus Business Park
Hitsaajankatu 24
00810 Helsinki
info@scanreal.fi
Puh:
Näytä puhelinnumero
020 730 8830
Sopivat toimitilat yhdellä otolla!
Kartoitamme toimitilatarpeesi ja etsimme yrityksellesi parhaiten sopivat vapaat toimitilat. Koska vuokranantajat maksavat palvelumme, on tämä yrityksellesi veloituksetonta.
OTA YHTEYTTÄ - SOVI NÄYTTÖ!
Kaikki kohteemme eivät ole netissä, kerro tilatarpeesi niin kartoitamme vaihtoehdot.
Palvelumme on tilanhakijalle ilmainen
Pyydä lisätietoa
